For Sale By Auction | 11:00, 05 May 2021 | Lot 31

181 London Road North, Lowestoft, Suffolk, NR32 1HG

Sold £128,500

  • Maisonette
  • 3 Bedrooms
  • Tenure: Freehold

Call the team on 01603 505 100 for more information

Auction Date

Wed 05/05/2021

Auction Time

11:00

Auction Venue

Livestream Auction

Town centre mixed use property: Vacant shop and maisonette Requires refurbishment

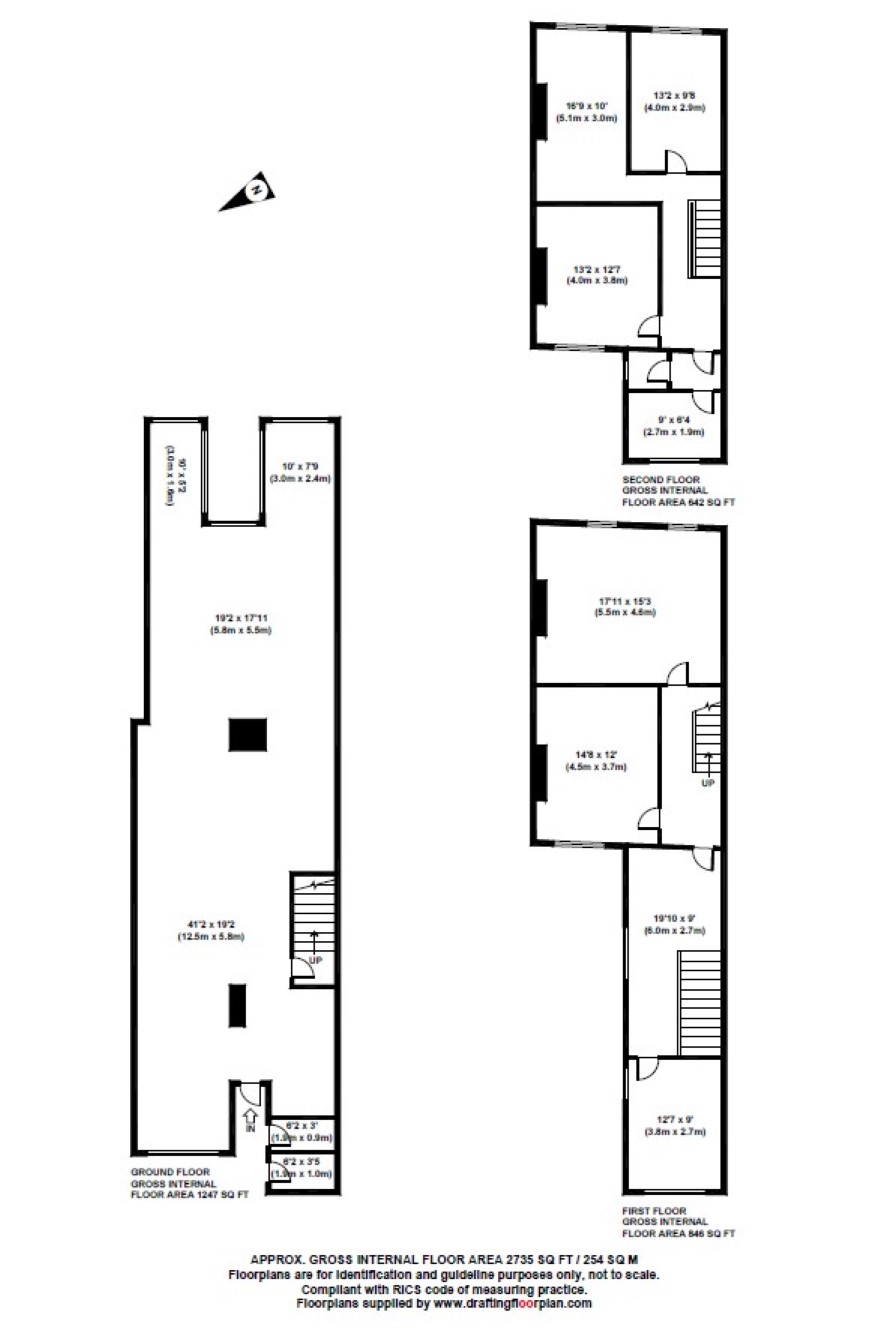
This large three storey mid terrace property comprises of a ground floor shop with a spacious first and second floor three bedroom maisonette above. The shop traded as the well known mens clothing retailer Holgates for a long time, however it has been empty for a couple of years and now requires renovation. It is conveniently situated in the centre of the town on the main shopping street. The maisonette is accessed from within the shop, however could be self contained with a new access from the front like the property next door, subject to the necessary consents. It is partially double glazed, has gas central heating and sea views, however requires a program of improvement. This is a redevelopment opportunity that would appeal to an investor.

Tenure

Freehold

Shop

Large open plan retail floor

Maisonette

First Floor

Landing, lounge, dining room, kitchen

Second Floor

Split level landing, three bedrooms, bathroom, w.c.

Outside

Enclosed rear yard with former brick store building in need of attention

Rates

According to the valuation office website the shop has a rateable value of £8,000 with effect from 1st April 2017.

Viewings

Individual appointments can be arranged - the next are Wednesday 28 April - BOOKING ESSENTIAL - Please call the Norwich office on 01603 505100 to book the next available slot

Energy Efficiency Rating (EPC)

Current Rating D

Services

Interested parties are requested to make their own enquiries to the relevant authorities as to the availability of services.

Local Authority

Waveney District Council. Tel: 01502 562111

Solicitors

Nicholsons Solicitors, 23 Alexandra Road, Lowestoft, NR32 1PP, Ref: Jade Tinney, Tel: 01502 532317

Important Notice to Prospective Buyers:

We draw your attention to the Special Conditions of Sale within the Legal Pack, referring to other charges in addition to the purchase price which may become payable. Such costs may include Search Fees, reimbursement of Sellers costs and Legal Fees, and Transfer Fees amongst others.

Additional Fees

Administration Charge - 0.3% inc VAT of the purchase price, subject to a minimum of £1140 inc VAT, payable on exchange of contracts.

Disbursements - Please see the legal pack for any disbursements listed that may become payable by the purchaser on completion.

View Larger Map

Disclaimer: The map preview provided above is for general guidance only and may not accurately reflect the exact location or surrounding buildings. Prospective buyers and interested parties are strongly advised to independently verify the precise location and surroundings before bidding.