For Sale By Auction | 11:00, 05 May 2021 | Lot 30

74 Seago Street, Lowestoft, Suffolk, NR32 2DT

Sold £99,000

  • Terraced House
  • 3 Bedrooms
  • Tenure: Freehold

Call the team on 01603 505 100 for more information

Auction Date

Wed 05/05/2021

Auction Time

11:00

Auction Venue

Livestream Auction

Tenanted residential investment producing £5,700 pa (£475 pcm)

A three bedroom mid terrace house currently let to an established assured shorthold tenant and therefore to be sold as an investment. The property has gas fired central heating sealed unit double glazing and produces a current rental income of £475 pcm (£5,700 pa). The property is located within an established residential area within walking distance of shops and other public services. Lowestoft is well served by high street shops and public amenities including rail service to all other major local centers.

Tenure

Freehold

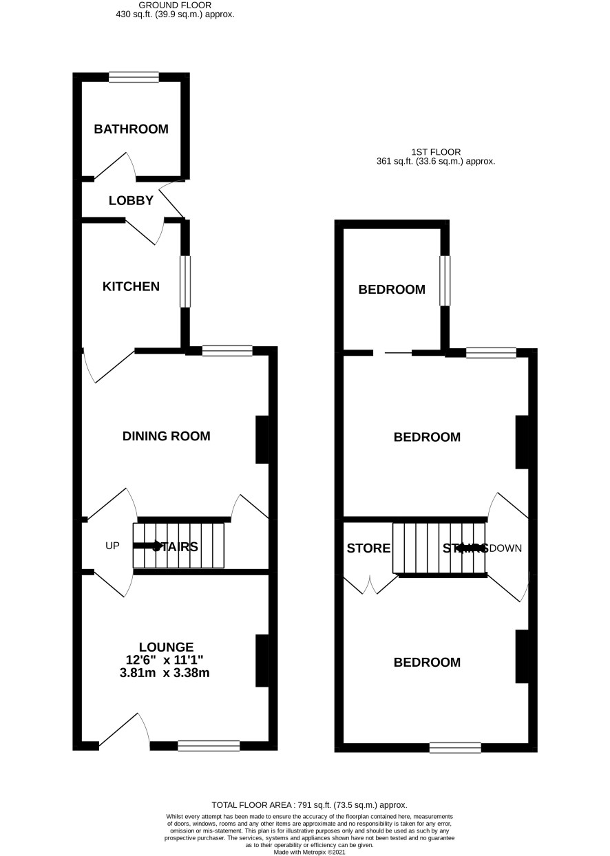
Accommodation

Lounge, dining room, kitchen, bathroom

First Floor

Landing, 3 bedrooms (third through second)

Outside

Small front and rear gardens with rear right of way.

Viewing

Individual appointments can be arranged - the next are Monday 26 April - BOOKING ESSENTIAL - Please call the Norwich office on 01603 505100 to book the next available slot

Energy Efficiency Rating (EPC)

Current Rating - pleaser refer to Legal Pack

Services

Interested parties are requested to make their own enquiries to the relevant authorities as to the availability of services.

Local Authority

Waveney District Council. Tel: 01502 562111

Solicitors

Howes Percival, Flint Buildings, 1 Bedding Lane, Norwich, NR3 1RG, Ref: Joris Salden, Tel: 01603 762103

Important Notice to Prospective Buyers:

We draw your attention to the Special Conditions of Sale within the Legal Pack, referring to other charges in addition to the purchase price which may become payable. Such costs may include Search Fees, reimbursement of Sellers costs and Legal Fees, and Transfer Fees amongst others.

Additional Fees

Administration Charge - 0.3% inc VAT of the purchase price, subject to a minimum of £1140 inc VAT, payable on exchange of contracts.

Disbursements - Please see the legal pack for any disbursements listed that may become payable by the purchaser on completion.

View Larger Map

Disclaimer: The map preview provided above is for general guidance only and may not accurately reflect the exact location or surrounding buildings. Prospective buyers and interested parties are strongly advised to independently verify the precise location and surroundings before bidding.