Withdrawn | Lot 38

20 Falcon Lane, Whittlesey, Peterborough, Cambridgeshire, PE7 1BJ

Withdrawn

  • End of Terrace House
  • 4 Bedrooms
  • Tenure: Freehold

Call the team on 01733 889833 for more information

Auction Date

Wed 28/07/2021

Auction Time

11:00

Auction Venue

Livestream Auction

A four bedroom house set on three levels with annexe potential. Currently let producing an income of £11,700 pa.

This four bedroom house is located just off the town centre with good access to the shops and recreational facilities in the town. It is currently let to a family producing an income of £11,700 pa. The current tenants are using the room above the garage as a gym. However the owner has considered converting the garage and room above into an annexe. Whittlesey provides shops and recreational facilities together with a rail link into Peterborough and March.

Tenure

Freehold

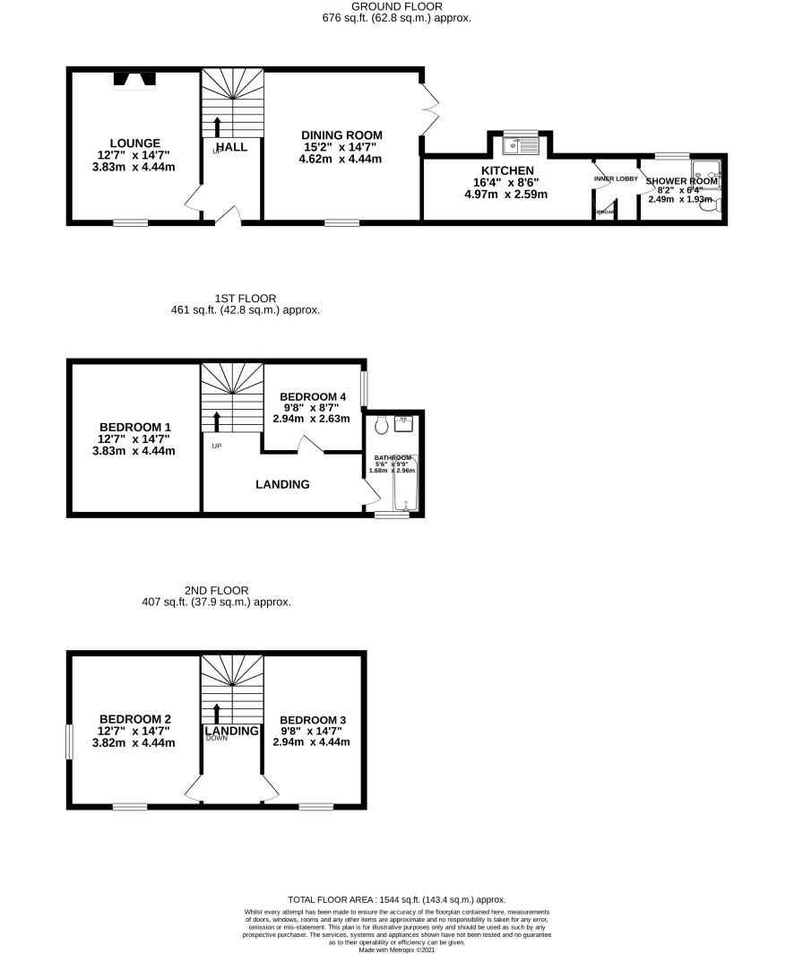
Ground Floor

Hall, lounge, dining room, kitchen, utility/shower room,

First Floor

Two bedrooms, bathroom.

Second Floor

Two bedrooms.

Outside

A garage and room above currently used as a gym. Terrace garden and further terrace area behind the garage.

Viewings

By appointment with the auctioneer on 01733 889833

Energy Efficiency Rating (EPC)

Current Rating E

Services

Interested parties are requested to make their own enquiries to the relevant authorities as to the availability of services.

Local Authority

Peterborough City Council. Tel: 01733 747474

Solicitors

PDR Property Lawyers, 8a Market Street, Whittlesey, Peterborough, PE7 1BA, Ref: Grace Newell, Tel: 01733 203873

Important Notice to Prospective Buyers:

We draw your attention to the Special Conditions of Sale within the Legal Pack, referring to other charges in addition to the purchase price which may become payable. Such costs may include Search Fees, reimbursement of Sellers costs and Legal Fees, and Transfer Fees amongst others.

Additional Fees

Buyer's Premium - £600 inc VAT payable on exchange of contracts.

Administration Charge - 0.3% inc VAT of the purchase price, subject to a minimum of £1140 inc VAT, payable on exchange of contracts.

Disbursements - Please see the legal pack for any disbursements listed that may become payable by the purchaser on completion.

View Larger Map

Disclaimer: The map preview provided above is for general guidance only and may not accurately reflect the exact location or surrounding buildings. Prospective buyers and interested parties are strongly advised to independently verify the precise location and surroundings before bidding.