Withdrawn | Lot 39

3 Hunts End Court, Buckden, St. Neots, Cambridgeshire, PE19 5QY

Withdrawn

  • Flat
  • 1 Bedroom
  • Tenure: Leasehold

Call the team on 01733 889833 for more information

Auction Date

Wed 28/07/2021

Auction Time

11:00

Auction Venue

Livestream Auction

A tenanted first floor 1 bedroom flat producing £575 pcm (£6,900 pa) in the centre of the village

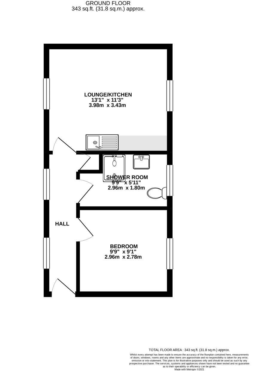
An ideal opportunity for an investor to purchase this 1 bedroom first floor flat located centrally within the village of Buckden. The village offers shops and schooling and is located well for the A1 with access to London and the North. A main line rail link can be found at Huntingdon and Sandy providing access to London Kings Cross. The property is let on an AST producing £6,900 pa and comprises a hall, lounge/ kitchen equipped with oven hob and extractor, bedroom and a shower room. A car parking space is located at the rear.

Tenure

Leasehold

Ground Floor

Communal entrance hall

First Floor

Communal hall, hall, lounge/kitchen, bedroom, bathroom

Outside

Car parking space.

Lease details

Term: 999 years from September 2006 Service Charge: £782.84 pa Ground Rent: Peppercorn

Note

There is a 14 day completion on this property.

Energy Efficiency Rating (EPC)

Current Rating C

Services

Interested parties are requested to make their own enquiries to the relevant authorities as to the availability of services.

Local Authority

Huntingdonshire District Council. Tel: 01480 388388

Solicitors

Wilsons Solicitors, 20 The Grove, Ilkley, LS29 9EG, Ref: Roxanne Denton, Tel: 01943 602998

Important Notice to Prospective Buyers:

We draw your attention to the Special Conditions of Sale within the Legal Pack, referring to other charges in addition to the purchase price which may become payable. Such costs may include Search Fees, reimbursement of Sellers costs and Legal Fees, and Transfer Fees amongst others.

Additional Fees

Buyer's Premium - £600 inc VAT payable on exchange of contracts.

Administration Charge - 0.3% inc VAT of the purchase price, subject to a minimum of £1140 inc VAT, payable on exchange of contracts.

Disbursements - Please see the legal pack for any disbursements listed that may become payable by the purchaser on completion.

View Larger Map

Disclaimer: The map preview provided above is for general guidance only and may not accurately reflect the exact location or surrounding buildings. Prospective buyers and interested parties are strongly advised to independently verify the precise location and surroundings before bidding.