Postponed | Lot 6

Cat And Fiddle, 105 Magdalen Street, Norwich, Norfolk, NR3 1LN

Postponed

  • Mixed Use
  • 3 Bedrooms
  • Tenure: Freehold

Call the team on 01603 505 100 for more information

Auction Date

Wed 28/07/2021

Auction Time

11:00

Auction Venue

Livestream Auction

Former 17th Century Public House with extensive accommodation and further development potential

Currently this impressive and high profile property offers commercial premises to the ground floor, a stylish and tasteful modernisation of the two upper floors to the front elevation into a three bedroom apartment with a further three storey attached building to the rear which could offer a further two bedrooms and extra living space or a fully self contained annex, subject to planning approval. The building extends to over 3800 square feet and benefits from secure off road parking for several vehicles and numerous character features. The property is located on the fringe of the Anglia Square development zone and close to a wide range of restaurants, high street shops and town centre amenities.

Tenure

Freehold

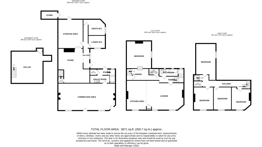
Ground Floor

Retail area/former public bar, rear lobby with utility area cloakroom, access to upper floors. Rear building with 2 main rooms, former ladies and gents toilets, access to cellar.

First Floor

Landing, impressive main reception room with large kitchen area, bathroom, separate wc, Rear hall with staircase to upper floor and to further reception room or bedroom 4.

Second Floor

Landing, 3 double bedrooms, cloakroom, potential bedroom 5 or studio.

Outside

Fully fenced courtyard garden providing several off road parking spaces

Viewings

Individual appointments can be arranged - please call the Norwich office to book a slot on the next viewing day

Energy Efficiency Rating (EPC)

Current Rating N/A

Services

Interested parties are requested to make their own enquiries to the relevant authorities as to the availability of services.

Local Authority

Norwich City Council. Tel: 0344 980 3333

Solicitors

Norton Legal, Unit 8 Beech Avenue, Taverham, Norwich, NR8 6HW, Ref: Tracy Guest, Tel: (01603) 864331

Important Notice to Prospective Buyers:

We draw your attention to the Special Conditions of Sale within the Legal Pack, referring to other charges in addition to the purchase price which may become payable. Such costs may include Search Fees, reimbursement of Sellers costs and Legal Fees, and Transfer Fees amongst others.

Additional Fees

Administration Charge - 0.3% inc VAT of the purchase price, subject to a minimum of £1140 inc VAT, payable on exchange of contracts.

Disbursements - Please see the legal pack for any disbursements listed that may become payable by the purchaser on completion.

View Larger Map

Disclaimer: The map preview provided above is for general guidance only and may not accurately reflect the exact location or surrounding buildings. Prospective buyers and interested parties are strongly advised to independently verify the precise location and surroundings before bidding.