Withdrawn | Lot 33

11 Gippeswyk Avenue, Ipswich, Suffolk, IP2 9AD

Withdrawn

  • Detached Bungalow
  • 3 Bedrooms
  • Tenure: Freehold

Call the team on 01473 558 888 for more information

Auction Date

Wed 20/10/2021

Auction Time

11:00

Auction Venue

Livestream Auction

A spacious detached bungalow overlooking a park and with a double garage/workshop.

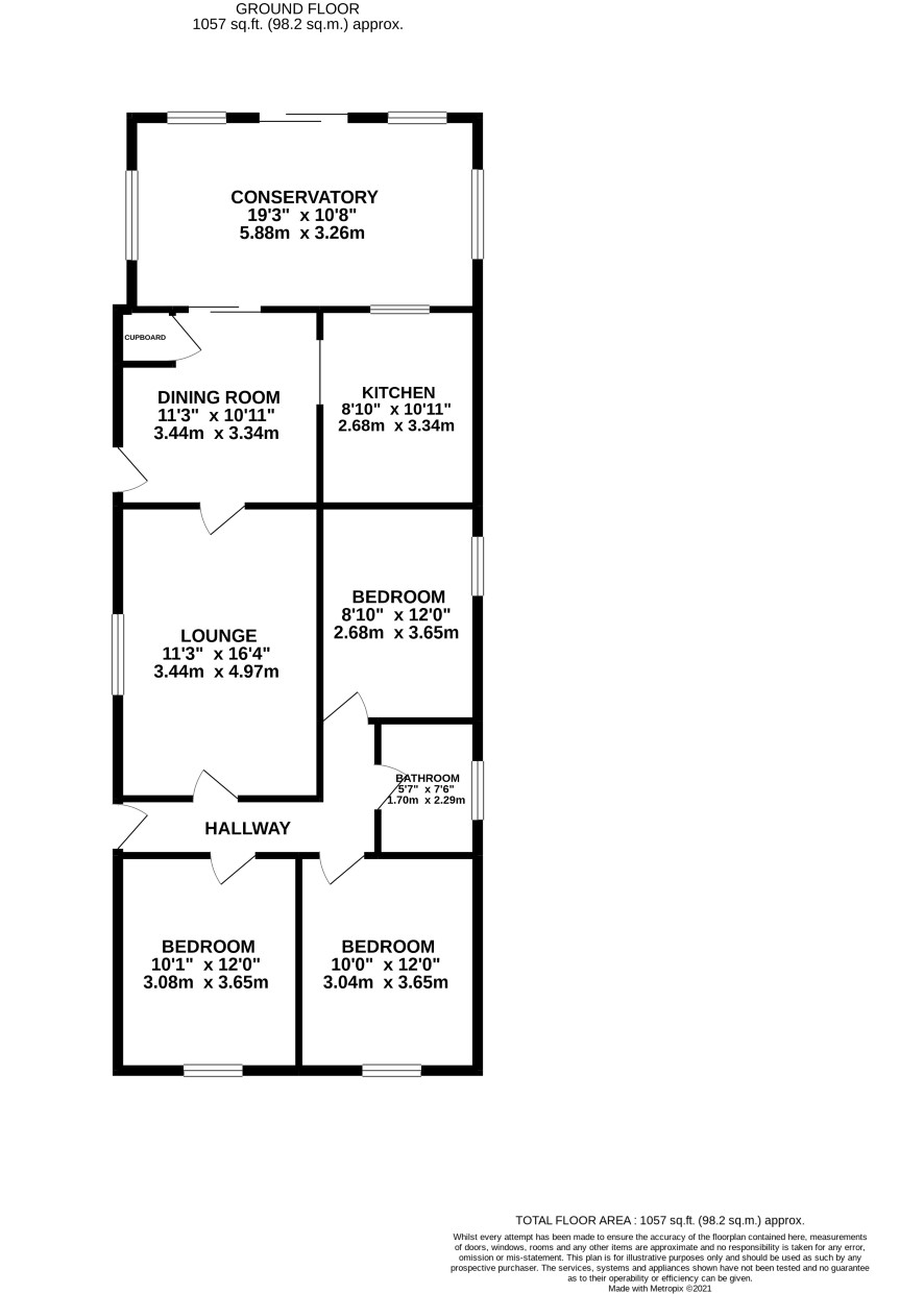
Situated just to the south of the town centre close to the station is this well proportioned non-estate detached bungalow. The property offers three bedroom accommodation including a 16' lounge, a 19' conservatory, parking to the front and is currently let on an Assured Shorthold Tenancy at £900 per calendar month which commenced in September 2019 and is now periodic. Vacant possession would require serving the statutory notice. Beyond the garden to the rear is a detached double garage/workshop and further hard standing area with space enough for six vehicles (excluded from the tenancy) which offers potential for increased revenue or possibly development. Being the only bungalow in the road and with the benefit of an immediate income and potential for property enhancement and potential to building additional dwelling (subject to planning permission). We believe this to be a first class investment opportunity.

Tenure

Freehold

Energy Efficiency Rating (EPC)

Current Rating Please refer to legal pack

Services

Interested parties are requested to make their own enquiries to the relevant authorities as to the availability of services.

Local Authority

Ipswich Borough Council. Tel: 01473 432000

Solicitors

Kerseys Solicitors, 32 Lloyds Avenue, Ipswich, IP1 3HD, Ref: Brian Smith, Tel: 01473 407111

Important Notice to Prospective Buyers:

We draw your attention to the Special Conditions of Sale within the Legal Pack, referring to other charges in addition to the purchase price which may become payable. Such costs may include Search Fees, reimbursement of Sellers costs and Legal Fees, and Transfer Fees amongst others.

Additional Fees

Buyer's Premium - £900 inc VAT payable on exchange of contracts.

Administration Charge - 0.3% inc VAT of the purchase price, subject to a minimum of £1140 inc VAT, payable on exchange of contracts.

Disbursements - Please see the legal pack for any disbursements listed that may become payable by the purchaser on completion.

View Larger Map

Disclaimer: The map preview provided above is for general guidance only and may not accurately reflect the exact location or surrounding buildings. Prospective buyers and interested parties are strongly advised to independently verify the precise location and surroundings before bidding.