For Sale By Auction | 11:00, 20 October 2021 | Lot 34

40 Salisbury Road, Ipswich, Suffolk, IP3 0NP

Sold £186,000

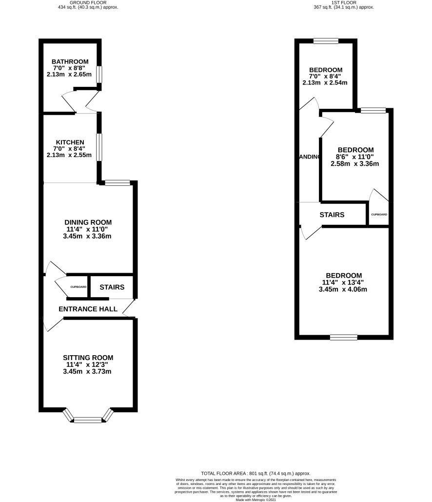
  • Semi-Detached House
  • 3 Bedrooms
  • Tenure: Freehold

Call the team on 01473 558 888 for more information

Auction Date

Wed 20/10/2021

Auction Time

11:00

Auction Venue

Livestream Auction

An attractive semi detached house with a good size garden and in a desirable east Ipswich location

Believed to date back to around 1900, this semi-detached house is very well located just off Felixstowe Road to the east of the town centre. The property has most recently been tenanted but is now offered for sale with vacant possession and offers 3 bedroom accommodation with 2 reception rooms, a fitted kitchen, gas central heating and double glazing to the rear. Whilst it would benefit from some minor cosmetic enhancement, it is priced for the auction market at well below the retail value and will no doubt be of appeal to owner occupiers and investors alike.

Tenure

Freehold

Viewing

Viewings have been scheduled for Tues 28th September, Wed 6th & Tues 12th October. BOOKING AN APPOINTMENT IS ESSENTIAL. Please contact the Ipswich office to book the next available slot on your preferred day.

Energy Efficiency Rating (EPC)

Current Rating D

Services

Interested parties are requested to make their own enquiries to the relevant authorities as to the availability of services.

Local Authority

Ipswich Borough Council. Tel: 01473 432000

Solicitors

Kerseys Solicitors, 32 Lloyds Avenue, Ipswich, IP1 3HD, Ref: Jane Riley, Tel: 01473 407122

Important Notice to Prospective Buyers:

We draw your attention to the Special Conditions of Sale within the Legal Pack, referring to other charges in addition to the purchase price which may become payable. Such costs may include Search Fees, reimbursement of Sellers costs and Legal Fees, and Transfer Fees amongst others.

Additional Fees

Buyer's Premium - £900 inc VAT payable on exchange of contracts.

Administration Charge - 0.3% inc VAT of the purchase price, subject to a minimum of £1140 inc VAT, payable on exchange of contracts.

Disbursements - Please see the legal pack for any disbursements listed that may become payable by the purchaser on completion.

View Larger Map

Disclaimer: The map preview provided above is for general guidance only and may not accurately reflect the exact location or surrounding buildings. Prospective buyers and interested parties are strongly advised to independently verify the precise location and surroundings before bidding.