For Sale By Auction | 11:00, 20 October 2021 | Lot 24

34 Edinburgh Avenue, Gorleston, Great Yarmouth, Norfolk, NR31 7EZ

Sold £144,500

  • End of Terrace House
  • 2 Bedrooms
  • Tenure: Freehold

Call the team on 01603 505 100 for more information

Auction Date

Wed 20/10/2021

Auction Time

11:00

Auction Venue

Livestream Auction

A vacant two bedroom end terraced house requiring redecoration

Located in an established and popular residential neighbourhood this ex local authority house is now vacant and in need of some updating and redecoration. The property has gas central heating double glazing and a sheltered private garden and off road parking. The house is ideal for rental or owner occupation being close to the James Paget Hospital and within a mile of Gorleston town centre and sandy beach.

Tenure

Freehold

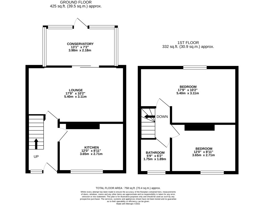
Ground Floor

Hall, lounge, kitchen, conservatory

First Floor

Landing, 2 bedrooms, bathroom

Outside

Front garden with off road parking. Sheltered and private rear garden.

Viewings

Individual viewings can be arranged - the next are Monday 11 October - APPOINTMENT ESSENTIAL - please call the Norwich office to book the next available slot

Energy Efficiency Rating (EPC)

Current Rating D

Services

Interested parties are requested to make their own enquiries to the relevant authorities as to the availability of services.

Local Authority

Great Yarmouth Borough Council. Tel: 01493 856100

Solicitors

Mears Hobbs & Durrant, 92 High Street, Gorleston on Sea, Great Yarmouth, NR31 6RH, Ref: Julie Kent, Tel: 01493 665413

Important Notice to Prospective Buyers:

We draw your attention to the Special Conditions of Sale within the Legal Pack, referring to other charges in addition to the purchase price which may become payable. Such costs may include Search Fees, reimbursement of Sellers costs and Legal Fees, and Transfer Fees amongst others.

Additional Fees

Buyer's Premium - £420 inc VAT payable on exchange of contracts.

Administration Charge - 0.3% inc VAT of the purchase price, subject to a minimum of £1140 inc VAT, payable on exchange of contracts.

Disbursements - Please see the legal pack for any disbursements listed that may become payable by the purchaser on completion.

View Larger Map

Disclaimer: The map preview provided above is for general guidance only and may not accurately reflect the exact location or surrounding buildings. Prospective buyers and interested parties are strongly advised to independently verify the precise location and surroundings before bidding.