For Sale By Auction | 11:00, 20 October 2021 | Lot 70

21 Beccles Road, Oulton Broad, Lowestoft, Suffolk, NR33 8QT

Sold £230,000

  • Semi-Detached House
  • 3 Bedrooms
  • Tenure: Freehold

Call the team on 01603 505 100 for more information

Auction Date

Wed 20/10/2021

Auction Time

11:00

Auction Venue

Livestream Auction

Substantial three bedroom semi detached house in need of restoration

This substantial semi detached property has been owned by the current owners for over 60 years and is now in need of restoration. Stepping into the property you will instantly see that many of the original and older features still stand, such as the stained glass panels in the front door, coving, picture rails and a Rayburn stove in the kitchen. This house offers generous accommodation with two internal staircases leading to three bedrooms, bathroom and a cloakroom on the first floor, whilst downstairs has two reception rooms, kitchen scullery and a garden room with outside toilet and store. For those looking for a development project, this property presents endless opportunities subject to the necessary planning. Tucked back from the road the gravel drive offers parking and a side passage provides access to the property and rear garden stretching beyond the house, which is in need of some attention. The private garden contains a number of handmade greenhouses, which hide its true potential. Oulton Broad is a desirable area of nearby coastal resort of Lowestoft both served with amenities and local bus route.

Tenure

Freehold

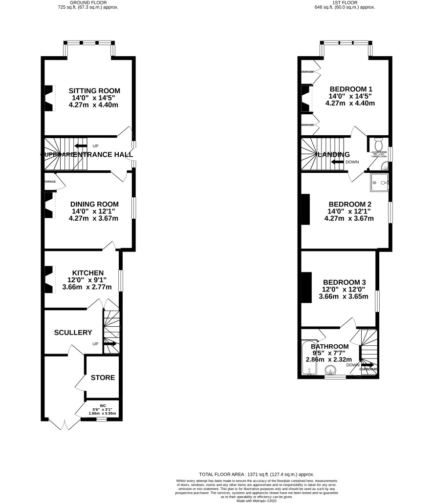
Ground Floor

Entrance hall, sitting room, dining room, kitchen, scullery, garden room, w/c, store

First Floor

Landing, three bedrooms, bathroom and separate cloakroom

Outside

Gravel drive providing parking, side passage to front entrance and rear garden access. Private rear garden extending to the rear beyond a number of handmade greenhouses.

Viewings

Individual viewings can be arranged - the next are on Monday 18th October APPOINTMENT ESSENTIAL - please call our Norwich office to book a viewing slot.

Energy Efficiency Rating (EPC)

Current Rating - please refer to Legal Pack

Services

Interested parties are requested to make their own enquiries to the relevant authorities as to the availability of services.

Local Authority

East Suffolk Council. Tel: 0333 016 2000

Solicitors

Norton Legal, Unit 8 Beech Avenue, Taverham, Norwich, NR8 6HW, Ref: Tracy Guest, Tel: (01603) 864331

Important Notice to Prospective Buyers:

We draw your attention to the Special Conditions of Sale within the Legal Pack, referring to other charges in addition to the purchase price which may become payable. Such costs may include Search Fees, reimbursement of Sellers costs and Legal Fees, and Transfer Fees amongst others.

Additional Fees

Buyer's Premium - £960 inc VAT payable on exchange of contracts.

Administration Charge - 0.3% inc VAT of the purchase price, subject to a minimum of £1140 inc VAT, payable on exchange of contracts.

Disbursements - Please see the legal pack for any disbursements listed that may become payable by the purchaser on completion.

View Larger Map

Disclaimer: The map preview provided above is for general guidance only and may not accurately reflect the exact location or surrounding buildings. Prospective buyers and interested parties are strongly advised to independently verify the precise location and surroundings before bidding.