For Sale By Auction | 11:00, 20 October 2021 | Lot 71

Swan Inn, Swan Road, Worlingworth, Suffolk, IP13 7HZ

Sold £222,000

  • Pub
  • Tenure: Freehold

Call the team on 01473 558 888 for more information

Auction Date

Wed 20/10/2021

Auction Time

11:00

Auction Venue

Livestream Auction

Outstanding opportunity to acquire a vacant Grade II listed Public House in need of modernisation

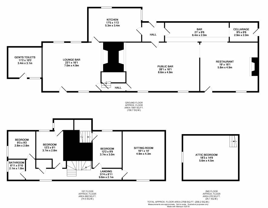
A historic thatched country pub in an idyllic village location now requiring modernisation and refurbishment. The property which has been empty for a number of years has a wealth of character features including exposed beams and inglenook fireplaces. The property has three main bar areas and a kitchen on the ground floor whilst on the first floor there is generous owners living accommodation with a further attic rooms on the second floor. The property is situated in a generous plot which is also in need of attention. Worlingworth is a picturesque village approximately 6 miles from Eye and 5 miles from Framlingham.

Tenure

Freehold

Ground Floor

Entrance lobby, lounge bar, public bar, restaurant, bar area, cellarage, kitchen

First Floor

Landing, lounge, three bedrooms, bathroom

Second Floor

Attic Room

Outside

Corner plot in need of attention, with outbuilding and parking.

Note

The property is being sold subject to Community purchase order. The six month Notice is to be served on the fall of the hammer. Further details from the auctioneer.

Viewing

Open viewing has been scheduled for Wednesday 13th October from 4.00pm - 5.00pm. Please contact the Ipswich office should you wish to attend.

Services

Interested parties are requested to make their own enquiries to the relevant authorities as to the availability of services.

Local Authority

Babergh District Council. Tel: 01473 826622

Solicitors

Cohen Filippini, 10 Greenwood Street, Altrincham, WA14 1RZ, Ref: Emma Filippini, Tel: 0161 929 9993

Important Notice to Prospective Buyers:

We draw your attention to the Special Conditions of Sale within the Legal Pack, referring to other charges in addition to the purchase price which may become payable. Such costs may include Search Fees, reimbursement of Sellers costs and Legal Fees, and Transfer Fees amongst others.

Additional Fees

Buyer's Premium - £1200 inc VAT payable on exchange of contracts.

Administration Charge - 0.3% inc VAT of the purchase price, subject to a minimum of £1140 inc VAT, payable on exchange of contracts.

Disbursements - Please see the legal pack for any disbursements listed that may become payable by the purchaser on completion.

View Larger Map

Disclaimer: The map preview provided above is for general guidance only and may not accurately reflect the exact location or surrounding buildings. Prospective buyers and interested parties are strongly advised to independently verify the precise location and surroundings before bidding.