Sold Prior | Lot 14

74 St. Faiths Lane, Norwich, Norfolk, NR1 1NE

Sold Prior

  • Apartment
  • 3 Bedrooms
  • Tenure: Freehold

Call the team on 01603 505 100 for more information

Auction Date

Wed 08/12/2021

Auction Time

11:00

Auction Venue

Livestream Auction

Substantial city centre property with loft style living accommodation and ground floor workshop and garaging

This three storey building is located right at the heart of the City near to the Cathedral Close and with walking distance of the Railway Station. The building has recently been converted from offices into a substantial residential dwelling with a workshop and office facility on the ground floor. There is planning permission for the addition of a roof top garden and living space with views towards the Cathedral Spire. The conversion has not yet been fully completed and would benefit from the finishing touches. The premises benefit from gas central heating, highly adaptable living accommodation and the major advantage of city centre garaging. The accommodation extends to 3,265 sq ft, 303.4 sq m and would lend itself well to multiple occupancy or sub-division (subject to the necessary consents).

Tenure

Freehold

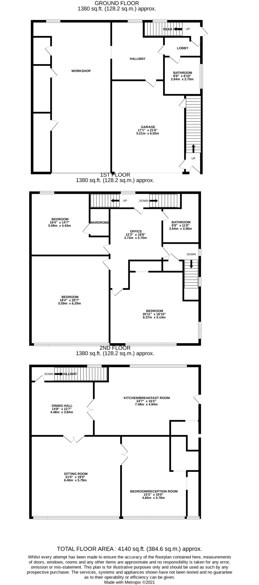
Ground Floor

Garage, artist studio/workshop, office, utility room/bathroom, side entrance lobby with stairs to First Floor

First Floor

Landing, three bedrooms, shower room

Second Floor

Living room, kitchen/breakfast room, dining room/bedroom 4, dining hall.

Planning

Norwich City Council Planning Ref. 20/00593/F Decision date: 18 August 2020 Proposal: Change of use from office (Class B1) to residential (Class C3) with roof extension and terrace.

Viewings

Individual viewings can be arranged - APPOINTMENT ESSENTIAL - please call the Norwich office to book the next available slot

Energy Efficiency Rating (EPC)

Current Rating F

Services

Interested parties are requested to make their own enquiries to the relevant authorities as to the availability of services.

Local Authority

Norwich City Council. Tel: 0344 980 3333

Solicitors

Hatch Brenner, 4 Theatre Street, Norwich, NR2 1QY, Ref: Rachael Hughes, Tel: 01603 660811

Important Notice to Prospective Buyers:

We draw your attention to the Special Conditions of Sale within the Legal Pack, referring to other charges in addition to the purchase price which may become payable. Such costs may include Search Fees, reimbursement of Sellers costs and Legal Fees, and Transfer Fees amongst others.

Additional Fees

Buyer's Premium - £900 inc VAT payable on exchange of contracts.

Administration Charge - 0.3% inc VAT of the purchase price, subject to a minimum of £1140 inc VAT, payable on exchange of contracts.

Disbursements - Please see the legal pack for any disbursements listed that may become payable by the purchaser on completion.

View Larger Map

Disclaimer: The map preview provided above is for general guidance only and may not accurately reflect the exact location or surrounding buildings. Prospective buyers and interested parties are strongly advised to independently verify the precise location and surroundings before bidding.