Postponed | Lot 32

30 Priory Road, Peterborough, Cambridgeshire, PE3 9EB

Postponed

  • Detached House
  • 6 Bedrooms
  • Tenure: Freehold

Call the team on 01733 889833 for more information

Auction Date

Wed 09/02/2022

Auction Time

11:00

Auction Venue

Livestream Auction

A detached six bedroom house offered with vacant possession within easy reach of Peterborough railway station.

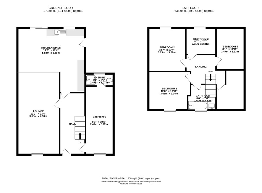
This six bedroom detached house has been extended and offers versatile accommodation with a ground floor bedroom, en-suite, lounge, kitchen-diner and five bedrooms and a bathroom on the first floor. The loft has an area with a window with further space to develop additional accommodation. Building control drawings are in place. Priory Road is located off Mayors Walk and Thorpe Park Road. The city centre is convenient with the Westgate shopping centre and rail link into London Kings Cross.

Tenure

Freehold

Ground Floor

Hall, lounge, kitchen-diner, ground floor bedroom 6 with en-suite.

First Floor

Five bedrooms, family bathroom.

Outside

Parking to front and garden to the rear.

Viewings

Individual viewings can be arranged - the next are Friday 7 Jan 11:00am-12:00pm, Friday 21 Jan 10:00am -11:00am, Thursday 27 Jan 2:00pm -3:00pm and Thursday 3 February 10:00am-11:00am. APPOINTMENT ESSENTIAL - please call our Peterborough office to arrange the next available slot on the appropriate viewing day

Energy Efficiency Rating (EPC)

Current Rating D

Services

Interested parties are requested to make their own enquiries to the relevant authorities as to the availability of services.

Local Authority

Peterborough City Council. Tel: 01733 747474

Solicitors

Bindman, 22 Front Street, Whickham, Newcastle Upon Tyne, NE164DT, Ref: Claire Stanton, Tel: 0191 432 4408

Important Notice to Prospective Buyers:

We draw your attention to the Special Conditions of Sale within the Legal Pack, referring to other charges in addition to the purchase price which may become payable. Such costs may include Search Fees, reimbursement of Sellers costs and Legal Fees, and Transfer Fees amongst others.

Additional Fees

Administration Charge - 0.3% inc VAT of the purchase price, subject to a minimum of £1140 inc VAT, payable on exchange of contracts.

Disbursements - Please see the legal pack for any disbursements listed that may become payable by the purchaser on completion.

View Larger Map

Disclaimer: The map preview provided above is for general guidance only and may not accurately reflect the exact location or surrounding buildings. Prospective buyers and interested parties are strongly advised to independently verify the precise location and surroundings before bidding.