For Sale By Auction | 11:00, 09 February 2022 | Lot 33

15 Green Lane, Peterborough, Cambridgeshire, PE1 3BA

Sold £181,000

  • Semi-Detached House
  • 3 Bedrooms
  • Tenure: Freehold

Call the team on 01733 889833 for more information

Auction Date

Wed 09/02/2022

Auction Time

11:00

Auction Venue

Livestream Auction

A Three Bedroom Edwardian semi detached house in need of renovation and building works

This three bedroom semi detached house is offered with vacant possession and is in need of renovation throughout. Ideal for an investor / builder. The property has some signs of structural movement and an Engineers report is in the legal pack. The accommodation includes two reception rooms, kitchen and ground floor W.C with three bedrooms and a bathroom on the first floor. Outside at rear provides a garden. Green Lane is located off Dogsthorpe Road and has local convenience facilities close by with the city centre providing more extensive facilities including the main line rail link into London Kings Cross.

Tenure

Freehold

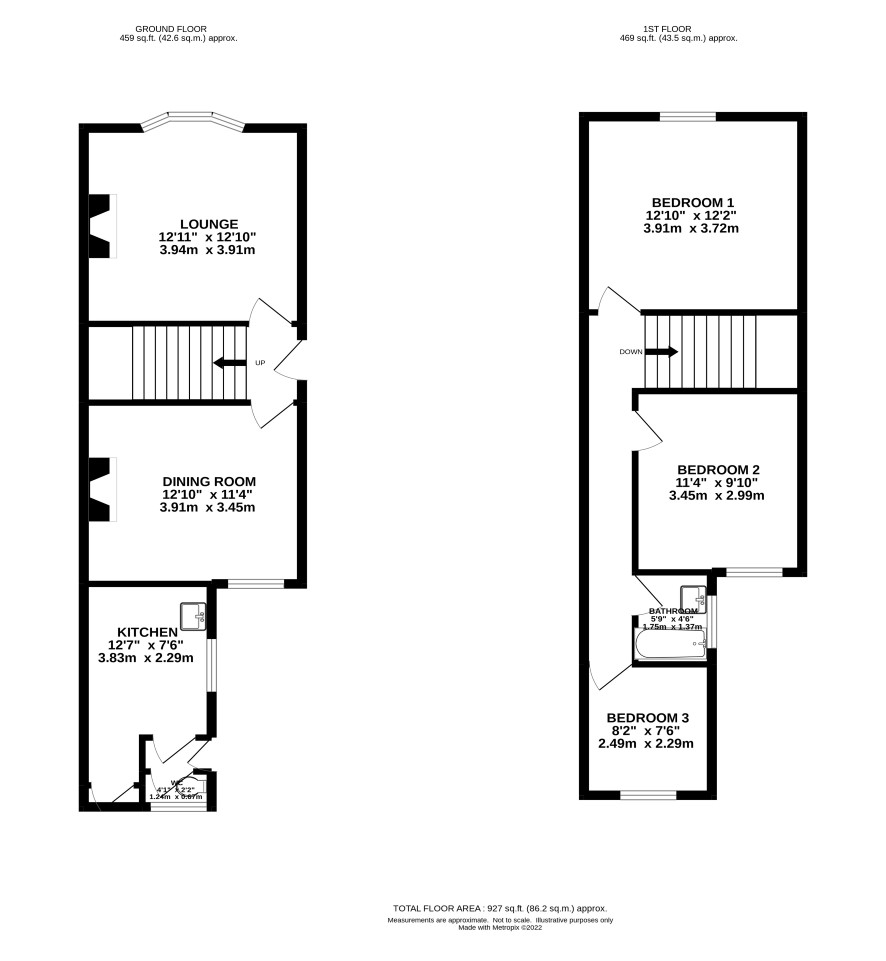
Ground Floor

Hall, lounge, dining room, kitchen, W.C.

First Floor

Three bedrooms, bathroom

Outside

Garden to rear.

Viewings

Viewings have been scheduled for Friday 21st January - APPOINTMENT ESSENTIAL - please call the Peterborough office to be allocated a time slot on your preferred day.

Energy Efficiency Rating (EPC)

Current Rating E

Services

Interested parties are requested to make their own enquiries to the relevant authorities as to the availability of services.

Local Authority

Peterborough City Council. Tel: 01733 747474

Solicitors

Bindman, 22 Front Street, Whickham, Newcastle Upon Tyne, NE164DT, Ref: Claire Stanton, Tel: 0191 432 4408

Important Notice to Prospective Buyers:

We draw your attention to the Special Conditions of Sale within the Legal Pack, referring to other charges in addition to the purchase price which may become payable. Such costs may include Search Fees, reimbursement of Sellers costs and Legal Fees, and Transfer Fees amongst others.

Additional Fees

Buyer's Premium - £900 inc VAT payable on exchange of contracts.

Administration Charge - 0.3% inc VAT of the purchase price, subject to a minimum of £1140 inc VAT, payable on exchange of contracts.

Disbursements - Please see the legal pack for any disbursements listed that may become payable by the purchaser on completion.

View Larger Map

Disclaimer: The map preview provided above is for general guidance only and may not accurately reflect the exact location or surrounding buildings. Prospective buyers and interested parties are strongly advised to independently verify the precise location and surroundings before bidding.