Sold Prior | Lot 55

39 & 40 Barkis Road, Great Yarmouth, Norfolk, NR30 3ED

Sold Prior

  • Block of Apartments
  • 5 Bedrooms
  • Tenure: Leasehold. 999 year lease

Call the team on 01603 505 100 for more information

Auction Date

Wed 09/02/2022

Auction Time

11:00

Auction Venue

Livestream Auction

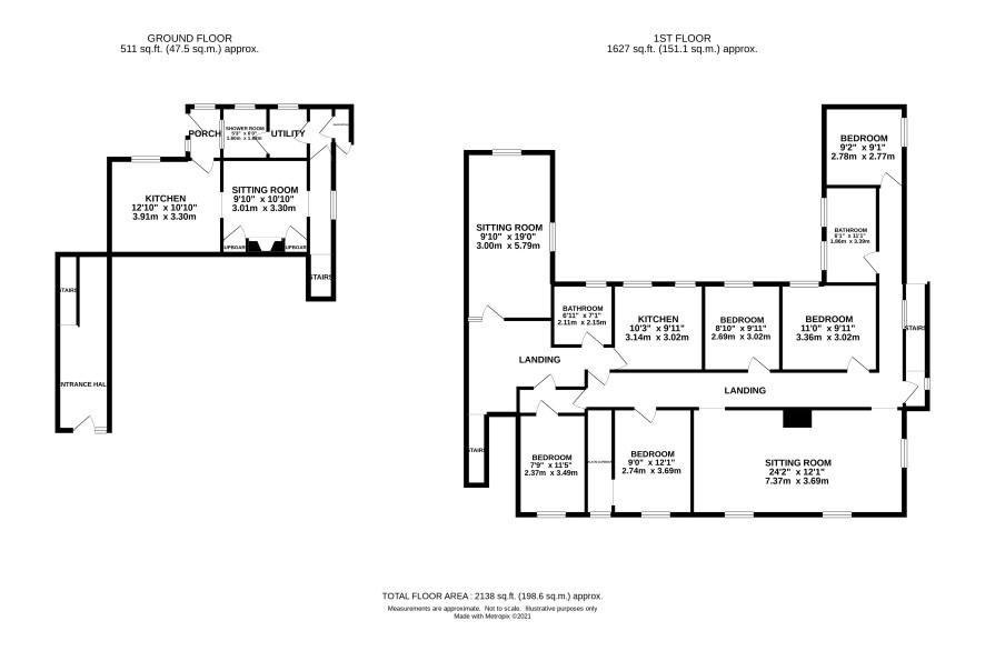
Two spacious maisonettes with redevelopment potential to be sold as one lot

This lot comprises of two self contained residential units on the ground and first floors conveniently located above and behind a Morrisons Daily shop. Both were until recently let producing £12,240 pa, and are now to be sold with vacant possession. The flats are self contained, however can also be interconnected. There is the potential to divide the existing units into additional flats, subject to the necessary consents. The property is located around half a mile south east of the town centre opposite Great Yarmouth Primary Academy and is close to the beach and a range of services and amenities. This is an ideal opportunity for a buyer to let investor or developer.

Tenure

Leasehold. 999 year lease

Description:

39: One bedroom maisonette, previously let at £420 pcm (£5,040 pa) Ground floor: entrance hall First floor: landing, bedroom, kitchen, sitting room, bathroom

40: Four bedroom maisonette, previously let at £600 pcm (£7,200 pa) Ground floor: entrance lobby, kitchen, sitting room, utility, shower room & wc First floor: landing, sitting room, four bedrooms, bathroom Large attic with potential Outside: side yard, rear garden, garage, off road parking via Micawber Avenue

Viewing

Individual viewings can be arranged - APPOINTMENT ESSENTIAL - please call the Norwich office to arrange the next available slot.

Energy Efficiency Rating (EPC)

Current Rating F & G

Services

Interested parties are requested to make their own enquiries to the relevant authorities as to the availability of services.

Local Authority

Great Yarmouth Borough Council. Tel: 01493 856100

Solicitors

HKB Wiltshires, 21 Hall Quay, Great Yarmouth, NR30 1HN, Ref: Samantha Brannigan, Tel: 01493 855676

Important Notice to Prospective Buyers:

We draw your attention to the Special Conditions of Sale within the Legal Pack, referring to other charges in addition to the purchase price which may become payable. Such costs may include Search Fees, reimbursement of Sellers costs and Legal Fees, and Transfer Fees amongst others.

Additional Fees

Administration Charge - 0.3% inc VAT of the purchase price, subject to a minimum of £1140 inc VAT, payable on exchange of contracts.

Disbursements - Please see the legal pack for any disbursements listed that may become payable by the purchaser on completion.

View Larger Map

Disclaimer: The map preview provided above is for general guidance only and may not accurately reflect the exact location or surrounding buildings. Prospective buyers and interested parties are strongly advised to independently verify the precise location and surroundings before bidding.