For Sale By Auction | 11:00, 09 February 2022 | Lot 56

3 Osborne Street, Lowestoft, Suffolk, NR32 1JJ

Sold £98,000

  • Terraced House
  • 2 Bedrooms
  • Tenure: Freehold

Call the team on 01603 505 100 for more information

Auction Date

Wed 09/02/2022

Auction Time

11:00

Auction Venue

Livestream Auction

End terraced house in need of modernisation and situated in coastal resort of Lowestoft

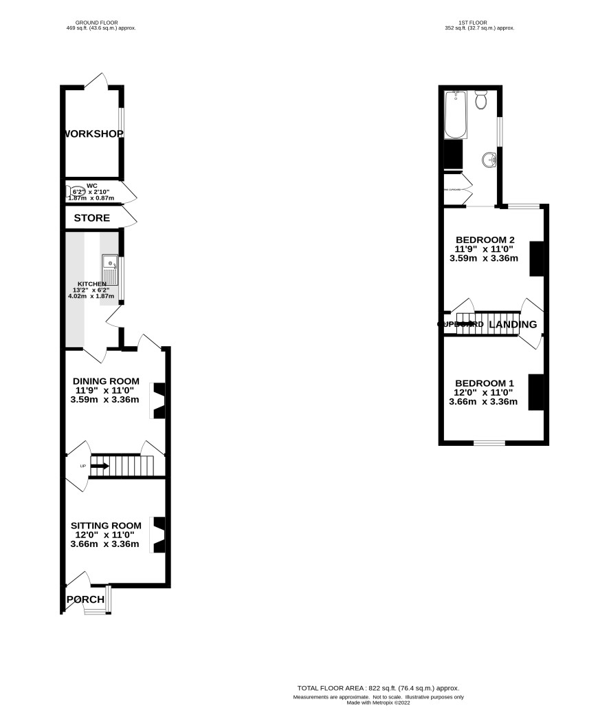
End terraced house situated in a small street close to the town centre of Suffolk coastal resort of Lowestoft. Offering great potential this two bedroom terrace is in need of updating. The accommodation comprises front porch, sitting room, dining room and kitchen, whilst upstairs there are two bedrooms and family bathroom. The back yard has a brick coal shed, outside w.c. and a useful outbuilding 3m x 2m. Ideal investment purchase for those looking for a project.

Tenure

Freehold

Ground Floor

Entrance porch, sitting room, dining room, kitchen

First Floor

Landing, two bedrooms with family bathroom leading off the rear bedroom

Outside

Walled front garden has gate leading to front entrance. Rear access leads to the back yard which has been concreted for easy maintenance. There is a brick coal store, w.c. and outside workshop measuring approximately 3m x 2m.

Viewings

Open days are planned and the next is on Monday 7th February. To book an appointment please call the Norwich office on 01603 505100.

Energy Efficiency Rating (EPC)

Current Rating F

Services

Interested parties are requested to make their own enquiries to the relevant authorities as to the availability of services.

Local Authority

East Suffolk Council. Tel: 0333 016 2000

Solicitors

Norton Peskett, 148 London Road North, Lowestoft, NR32 1HF, Ref: Teresa Poole, Tel: 01502 533 000

Important Notice to Prospective Buyers:

We draw your attention to the Special Conditions of Sale within the Legal Pack, referring to other charges in addition to the purchase price which may become payable. Such costs may include Search Fees, reimbursement of Sellers costs and Legal Fees, and Transfer Fees amongst others.

Additional Fees

Buyer's Premium - £960 inc VAT payable on exchange of contracts.

Administration Charge - 0.3% inc VAT of the purchase price, subject to a minimum of £1140 inc VAT, payable on exchange of contracts.

Disbursements - Please see the legal pack for any disbursements listed that may become payable by the purchaser on completion.

View Larger Map

Disclaimer: The map preview provided above is for general guidance only and may not accurately reflect the exact location or surrounding buildings. Prospective buyers and interested parties are strongly advised to independently verify the precise location and surroundings before bidding.