For Sale By Auction | 11:00, 04 May 2022 | Lot 2

63 Norwich Road, Lowestoft, Suffolk NR32 2BL

Sold £122,000

  • Terraced House
  • 2 Bedrooms
  • Tenure: Freehold

Call the team on 01603 505 100 for more information

Auction Date

Wed 04/05/2022

Auction Time

11:00

Auction Venue

Livestream Auction

Vacant two bedroom terrace house requiring modernisation and redecoration

A two bedroom mid terrace house previously tenanted but now vacant and in need of updating and redecoration. The property has two reception rooms and a kitchen on the ground floor and two bedrooms, a dressing room and bathroom on the first floor. It is ideal for refurbishment or investment. The property is located a short walk from the town centre, railway station and sea front.

Tenure

Freehold

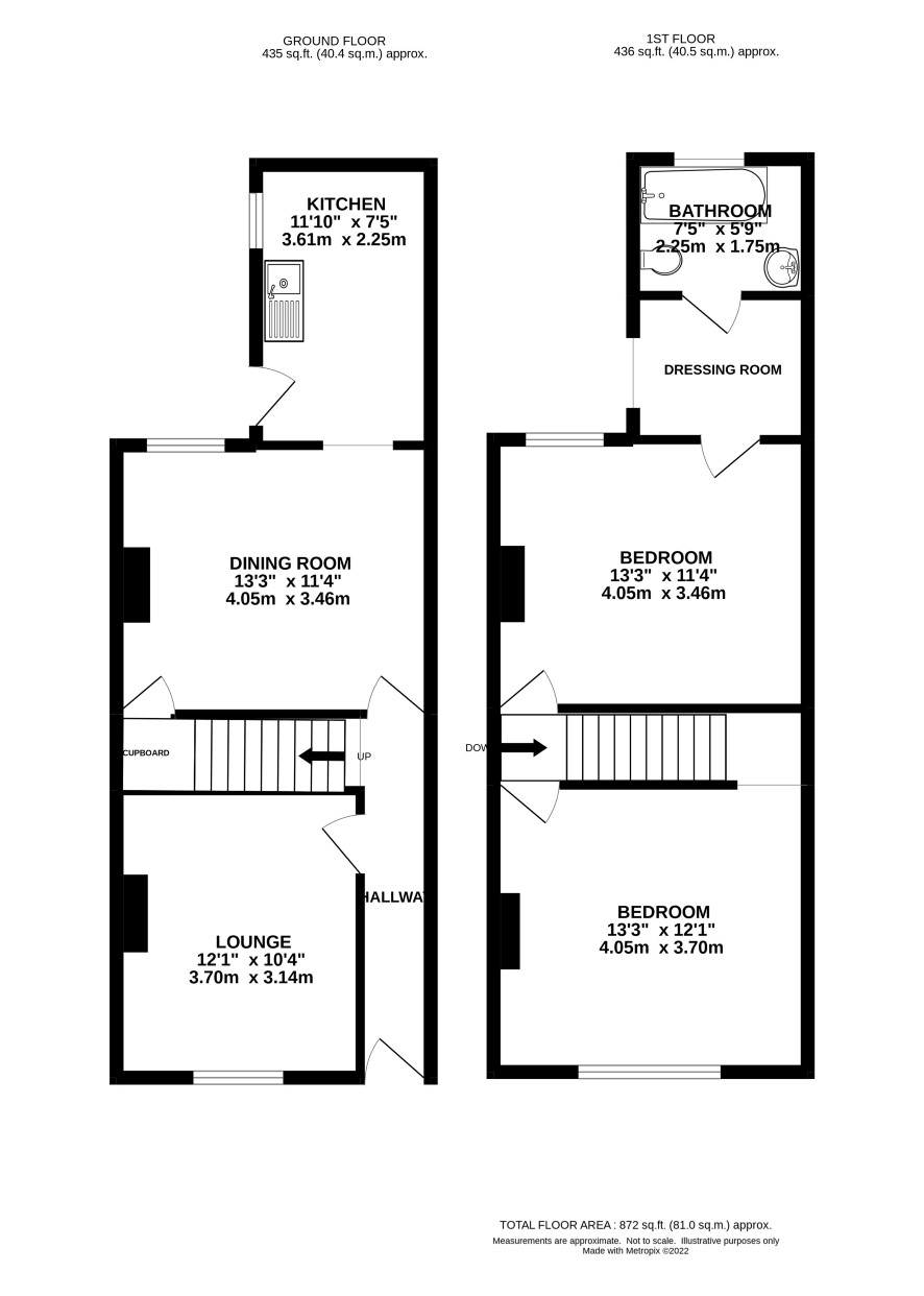
Ground Floor

Hall, lounge, dining room, kitchen

First floor

Small landing, two bedrooms, dressing room, bathroom

Outside

Small walled front and rear garden, with two small outbuildings

Viewings

Open viewings can be arranged. The next are on Tuesday, 3rd May. Please call the Norwich office to book an appointment.

Energy Efficiency Rating (EPC)

Current Rating D

Services

Interested parties are requested to make their own enquiries to the relevant authorities as to the availability of services.

Local Authority

East Suffolk Council

Solicitors

Norton Peskett, Ref: Matthew Breeze, Tel: 01493 849200

Important Notice to Prospective Buyers:

We draw your attention to the Special Conditions of Sale within the Legal Pack, referring to other charges in addition to the purchase price which may become payable. Such costs may include Search Fees, reimbursement of Sellers costs and Legal Fees, and Transfer Fees amongst others.

Additional Fees

Administration Charge - 0.3% inc VAT of the purchase price, subject to a minimum of £1200 inc VAT, payable on exchange of contracts.

Disbursements - Please see the legal pack for any disbursements listed that may become payable by the purchaser on completion.

View Larger Map

Disclaimer: The map preview provided above is for general guidance only and may not accurately reflect the exact location or surrounding buildings. Prospective buyers and interested parties are strongly advised to independently verify the precise location and surroundings before bidding.