For Sale By Auction | 11:00, 04 May 2022 | Lot 3

21 Rostwold Way, Norwich, Norfolk NR3 3NN

Sold £207,000

  • Terraced House
  • 3 Bedrooms
  • Tenure: Freehold

Call the team on 01603 505 100 for more information

Auction Date

Wed 04/05/2022

Auction Time

11:00

Auction Venue

Livestream Auction

Three bedroom mid terrace house with off road parking and garage

This property was built in the 1960s and is tucked away in a quiet cul-de-sac position less than two miles north of the city centre., close to a range of services and amenities. The house benefits from double glazing, gas fired central heating and is in good condition throughout. It has been in the same family for many years and is now to be sold with vacant possession. It would make a great first time purchase or buy-to-let investment. On instruction of executors.

Tenure

Freehold

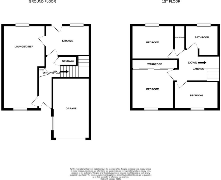
Ground floor

Entrance hall, lounge / diner, kitchen

First Floor

Landing, three bedrooms, bathroom

Outside

Paved driveway for off-road parking, front garden, single garage with power and lighting, enclosed paved rear garden

Viewings

Open viewings are arranged and the next are on Wednesday 27 April. To book an appointment please call the Norwich office.

Energy Efficiency Rating (EPC)

Current Rating E

Services

Interested parties are requested to make their own enquiries to the relevant authorities as to the availability of services.

Local Authority

Norwich City Council

Solicitors

Hatch Brenner, Ref: Happy Khumbeni, Tel: 01603 660811

Offered in association with

Gilson Bailey

Important Notice to Prospective Buyers:

We draw your attention to the Special Conditions of Sale within the Legal Pack, referring to other charges in addition to the purchase price which may become payable. Such costs may include Search Fees, reimbursement of Sellers costs and Legal Fees, and Transfer Fees amongst others.

Additional Fees

Buyer's Premium - £900 inc VAT payable on exchange of contracts.

Administration Charge - 0.3% inc VAT of the purchase price, subject to a minimum of £1200 inc VAT, payable on exchange of contracts.

Disbursements - Please see the legal pack for any disbursements listed that may become payable by the purchaser on completion.

View Larger Map

Disclaimer: The map preview provided above is for general guidance only and may not accurately reflect the exact location or surrounding buildings. Prospective buyers and interested parties are strongly advised to independently verify the precise location and surroundings before bidding.