For Sale By Auction | 11:00, 15 June 2022 | Lot 80

47 Rye Lane, Attleborough, Norfolk NR17 2JH

Sold £260,000

  • Detached Bungalow
  • 2 Bedrooms
  • Tenure: Freehold

Call the team on 01603 505 100 for more information

Auction Date

Wed 15/06/2022

Auction Time

11:00

Auction Venue

Livestream Auction

Two bedroom detached bungalow on good size plot requiring complete refurbishment

This property has been vacant for a number of years and requires a comprehensive program of repair and improvement following a water leak in the roof. It is situated in an established residential area less than a mile from the town centre, near a comprehensive range of services and amenities. The property benefits from gas fired heating and is partly double glazed. It has a front and rear garden, garage and off road parking. This is an ideal purchase for a builder or investor. On instruction of mortgagees.

Tenure

Freehold

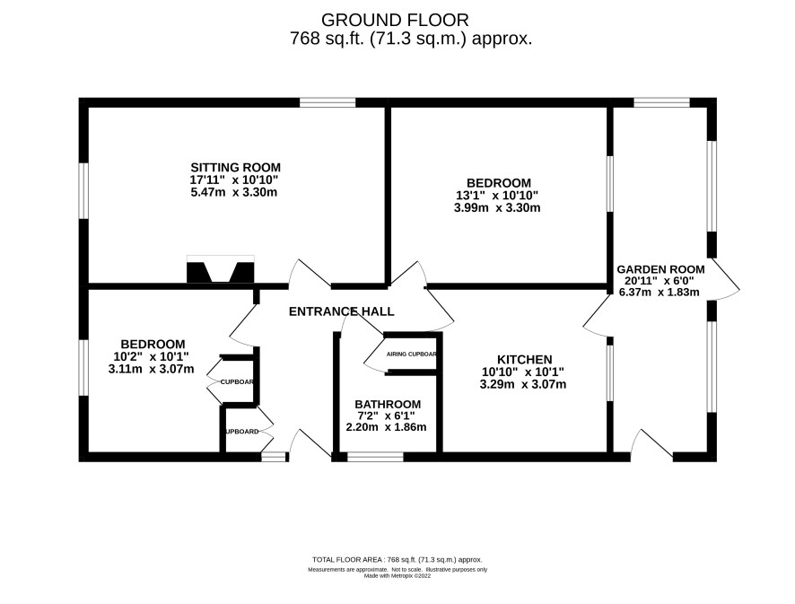
Accommodation

Entrance hall, two bedrooms, sitting room, bathroom, kitchen, conservatory

Outside

Front and rear garden in need of attention, off road park, attached garage

Viewings

Open viewings are arranged and the next are on Friday 10 June. To book an appointment please call the Norwich office on 01603 505100

Energy Efficiency Rating (EPC)

Current Rating D

Services

Interested parties are requested to make their own enquiries to the relevant authorities as to the availability of services.

Local Authority

Breckland Council

Solicitors

Robertsons, Ref: Kelsey Frowen, Tel: 029 2023 7777

Important Notice to Prospective Buyers:

We draw your attention to the Special Conditions of Sale within the Legal Pack, referring to other charges in addition to the purchase price which may become payable. Such costs may include Search Fees, reimbursement of Sellers costs and Legal Fees, and Transfer Fees amongst others.

Additional Fees

Buyer's Premium - £1140 inc VAT payable on exchange of contracts.

Administration Charge - 0.3% inc VAT of the purchase price, subject to a miniumum of £1200 inc VAT, payable on exchange of contracts.

Disbursements - Please see the legal pack for any disbursements listed that may become payable by the purchaser on completion.

View Larger Map

Disclaimer: The map preview provided above is for general guidance only and may not accurately reflect the exact location or surrounding buildings. Prospective buyers and interested parties are strongly advised to independently verify the precise location and surroundings before bidding.