Sold Prior | Lot 24

49 & 49A Crown Road, Great Yarmouth, Norfolk NR30 2JQ

Sold Prior

  • Flat
  • Tenure: Freehold

Call the team on 01603 505 100 for more information

Auction Date

Wed 15/06/2022

Auction Time

11:00

Auction Venue

Livestream Auction

Substantial ground and first floor flats in need of some updating situated in the popular resort of Great Yarmouth

These two substantial flats have been rented as individual rooms for the past 8 years achieving £85p/w/room and have only just been vacated by the tenants. Formerly a three storey terraced property, the house now offers a ground floor flat with rear entrance and courtyard and first floor flat with attic providing extra rooms. There is one supply of electric, water and gas to the properties and I am notified the gas is serviced and electrics are certificated.

Tenure

Freehold

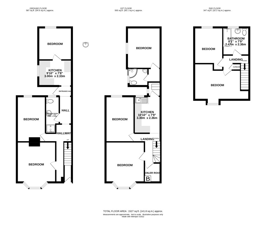
Ground floor

Access through a locked gate to courtyard garden providing access to the flat. Hall, kitchen, three rooms, shower room.

First floor

Stairs leading to first floor landing with stairs to second floor, kitchen, inner hall, shower room, separate w.c., four rooms

Second floor

Landing, bathroom, two further rooms

Viewings

Open viewings have been arranged for Friday, 10th June. To book an appointment please call the Norwich office.

Energy Efficiency Rating (EPC)

Current Rating D & C

Services

Interested parties are requested to make their own enquiries to the relevant authorities as to the availability of services.

Local Authority

Great Yarmouth Borough Council

Solicitors

Ward Gethin Archer, Ref: Tracy Guest, Tel: 01362 692182

Important Notice to Prospective Buyers:

We draw your attention to the Special Conditions of Sale within the Legal Pack, referring to other charges in addition to the purchase price which may become payable. Such costs may include Search Fees, reimbursement of Sellers costs and Legal Fees, and Transfer Fees amongst others.

Additional Fees

Buyer's Premium - £960 inc VAT payable on exchange of contracts.

Administration Charge - 0.3% inc VAT of the purchase price, subject to a miniumum of £1200 inc VAT, payable on exchange of contracts.

Disbursements - Please see the legal pack for any disbursements listed that may become payable by the purchaser on completion.

View Larger Map

Disclaimer: The map preview provided above is for general guidance only and may not accurately reflect the exact location or surrounding buildings. Prospective buyers and interested parties are strongly advised to independently verify the precise location and surroundings before bidding.