For Sale By Auction | 11:00, 15 June 2022 | Lot 23

20 Broad Row, Great Yarmouth, Norfolk NR30 1HT

Sold £95,000

  • Hairdresser / Barber Shop
  • Tenure: Freehold

Call the team on 01603 505 100 for more information

Auction Date

Wed 15/06/2022

Auction Time

11:00

Auction Venue

Livestream Auction

A long established Grade II Listed hairdressers shop with vacant upper floors Retirement sale

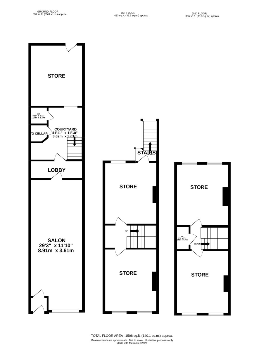
This town centre property has been a long established barbers shop trading for 44 years under the current ownership, but is now to be sold vacant. The ground floor comprises of a generous salon area with upper floors having separate rear access and could offer further opportunities to enhance the income by conversion into self contained residential accommodation. The property also has frontage onto Stonecutters Way which could provide another redevelopment opportunity, subject to planning.

Tenure

Freehold

Viewings

Open viewings are arranged for Tuesday 7 June. Please call the Norwich office to book an appointment.

Services

Interested parties are requested to make their own enquiries to the relevant authorities as to the availability of services.

Local Authority

Great Yarmouth Borough Council

Solicitors

Capron & Helliwell, Ref: Bryn Clarke

Important Notice to Prospective Buyers:

We draw your attention to the Special Conditions of Sale within the Legal Pack, referring to other charges in addition to the purchase price which may become payable. Such costs may include Search Fees, reimbursement of Sellers costs and Legal Fees, and Transfer Fees amongst others.

Additional Fees

Buyer's Premium - £420 inc VAT payable on exchange of contracts.

Administration Charge - 0.3% inc VAT of the purchase price, subject to a miniumum of £1200 inc VAT, payable on exchange of contracts.

Disbursements - Please see the legal pack for any disbursements listed that may become payable by the purchaser on completion.

View Larger Map

Disclaimer: The map preview provided above is for general guidance only and may not accurately reflect the exact location or surrounding buildings. Prospective buyers and interested parties are strongly advised to independently verify the precise location and surroundings before bidding.