For Sale By Auction | 11:00, 27 July 2022 | Lot 47

Electric House, 27a Church Street, Cromer, Norfolk NR27 9ES

Sold After

  • Mixed Use
  • 5 Bedrooms
  • Tenure: Freehold

Call the team on 01603 505 100 for more information

Auction Date

Wed 27/07/2022

Auction Time

11:00

Auction Venue

Livestream Auction

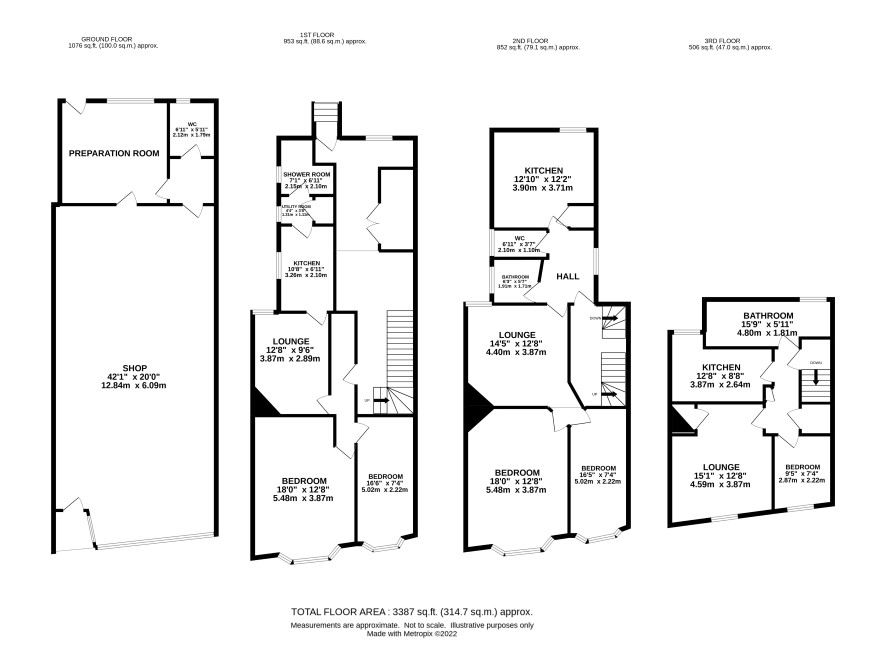
Freehold shop and residential investment - producing £32,980 pa.

Situated in a prominent High Street position, this imposing building comprises of a lock-up shop which is let to a successful and highly regarded local butchers and three self contained flats with parking. The whole building which is fully let generates an annual income of £32,980. This is a well looked after and highly productive investment opportunity at the centre of the busy and historic coastal town. Occupiers close by include HSBC Bank, Boots, Iceland, Mountain Warehouse and a wide variety of established local business, restaurants and public houses. The sea front with its famous pier and theatre are within a short walk. VAT is not applicable to this lot.

Tenure

Freehold

Accommodation and Tenancy schedule

Beast To Block: Ground Floor 100 sq m (1076 sq ft). 15 year lease from 2021, with a rent review in 5 years. Current rent £13,000pa to include a parking space. First floor flat: 2 bedrooms, lounge, kitchen, bathroom Rent £495pcm Second Floor flat: 2 bedrooms, lounge, kitchen, bathroom. Rent £520pcm Third Floor flat: 1 bedroom, lounge, kitchen, bathroom. Rent £525pcm Courtyard garden to rear, two covered parking spaces let at £250pa each Access rights in favour of HSBC £1,000pa Total Income £32,980pa

Viewings

Open viewings are arranged for Wednesday 22nd June and Tuesday 28th June. To book an appointment please call our Norwich office on 01603 505100.

Council Tax Band

A

Energy Efficiency Rating (EPC)

Current Rating D, E

Services

Interested parties are requested to make their own enquiries to the relevant authorities as to the availability of services.

Local Authority

North Norfolk District Council

Solicitors

BRM Law, Ref: Sanjeev Batra, Tel: 01246 564003

Important Notice to Prospective Buyers:

We draw your attention to the Special Conditions of Sale within the Legal Pack, referring to other charges in addition to the purchase price which may become payable. Such costs may include Search Fees, reimbursement of Sellers costs and Legal Fees, and Transfer Fees amongst others.

Additional Fees

Buyer's Premium - £420 inc VAT payable on exchange of contracts.

Administration Charge - 0.3% inc VAT of the purchase price, subject to a minimum of £1200 inc VAT, payable on exchange of contracts.

Disbursements - Please see the legal pack for any disbursements listed that may become payable by the purchaser on completion.

View Larger Map

Disclaimer: The map preview provided above is for general guidance only and may not accurately reflect the exact location or surrounding buildings. Prospective buyers and interested parties are strongly advised to independently verify the precise location and surroundings before bidding.