For Sale By Auction | 11:00, 27 July 2022 | Lot 46

14 Beach Road, Caister-On-Sea, Great Yarmouth, Norfolk NR30 5ER

Sold £120,000

  • End of Terrace House
  • 2 Bedrooms
  • Tenure: Freehold

Call the team on 01603 505 100 for more information

Auction Date

Wed 27/07/2022

Auction Time

11:00

Auction Venue

Livestream Auction

This period thatched cottage is nestled in the well known seaside resort of Caister on Sea and is in need of full restoration.

This thatched end terraced cottage set back from the road close to the sea in the Norfolk resort of Caister on Sea. Occupied by the late owners since 1946 and has gone through many decades of changes. Now in need of full restoration this project would be an ideal holiday home, investment or simply a lovely family home as it has been for years. The property offers two reception rooms, two bedrooms, kitchen, bathroom, utility area leading to a garden room in poor state of repair. Access to the side of the property leads to the rear garden which is in need of major attention and tucked within the overgrowth is a timber summerhouse.

Tenure

Freehold

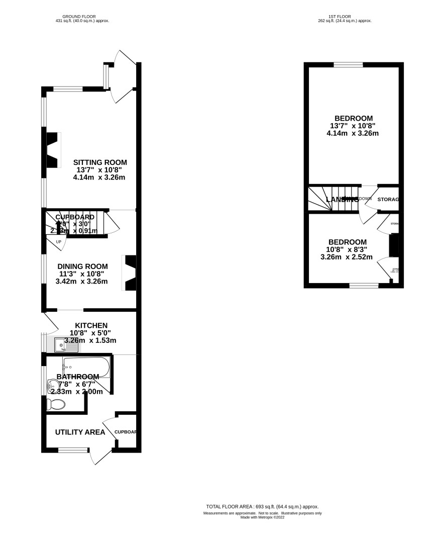
Ground floor

Porch, sitting room, dining room, kitchen, rear hall, utility area, bathroom garden room

First floor

Landing, two bedrooms

Exterior

To the front of the property is a parking area and a cottage garden enclosed by picket fencing. Access to the side of property is gated and provides access to a rather overgrown rear garden with timber summerhouse nestled in the corner.

Viewings

Open viewings are arranged for Monday 25 July, To book an appointment please call the Norwich office on 01603 505100.

Council Tax Band

A

Energy Efficiency Rating (EPC)

Current Rating E

Services

Interested parties are requested to make their own enquiries to the relevant authorities as to the availability of services.

Local Authority

Great Yarmouth Borough Council

Solicitors

Norton Peskett, Ref: Katie Youngman

Important Notice to Prospective Buyers:

We draw your attention to the Special Conditions of Sale within the Legal Pack, referring to other charges in addition to the purchase price which may become payable. Such costs may include Search Fees, reimbursement of Sellers costs and Legal Fees, and Transfer Fees amongst others.

Additional Fees

Buyer's Premium - £960 inc VAT payable on exchange of contracts.

Administration Charge - 0.3% inc VAT of the purchase price, subject to a minimum of £1200 inc VAT, payable on exchange of contracts.

Disbursements - Please see the legal pack for any disbursements listed that may become payable by the purchaser on completion.

View Larger Map

Disclaimer: The map preview provided above is for general guidance only and may not accurately reflect the exact location or surrounding buildings. Prospective buyers and interested parties are strongly advised to independently verify the precise location and surroundings before bidding.