For Sale By Auction | 11:00, 27 July 2022 | Lot 88

176 King Street, Great Yarmouth, Norfolk NR30 2NY

Sold After

  • Shop
  • Tenure: Freehold

Call the team on 01603 505 100 for more information

Auction Date

Wed 27/07/2022

Auction Time

11:00

Auction Venue

Livestream Auction

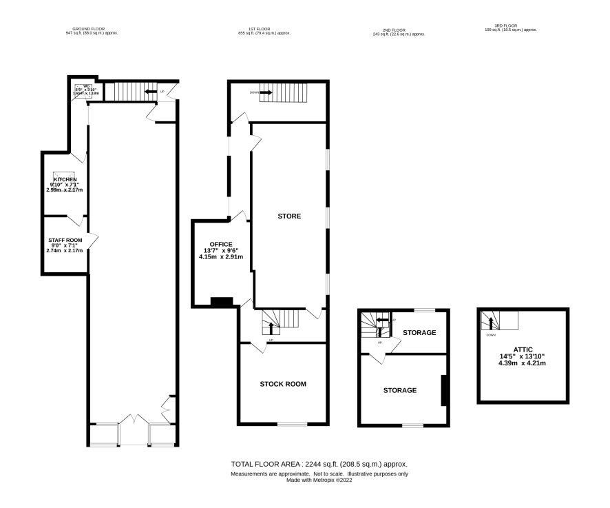
Town centre three storey shop with planning consent to convert upper floors to two flats

This prominent town centre shop is now vacant and ready for immediate occupation. The property has the benefit of planning permission to convert the upper floors into two self contained apartments which would add significant investment income. The property provides a ground floor sales area with side office and toilet. The first and second floors have separate side access and have received planning approval for residential development. At present the upper floors provide basic storage. This shop, located just off the market place, is in a prominent position with good footfall at the junction of King Street and Regent Street within Great Yarmouth's prime retailing district. The property is suitable for a variety of businesses and close to public car parks..

Tenure

Freehold

Accommodation

Ground Floor: Shop 69.14 m2 (744.22 ft2), office, toilet First and Second Floor: Storage 79 m2, Staffroom (850 ft2)

Planning

Planning consent has been granted by Great Yarmouth Borough Council for the conversion of the upper floors into 2 self contained flats. Ref 06/21/0195/F

Viewings

Individual appointments are available and the next are on Monday 4 July. Please call the Norwich office to book an appointment.

Draft Details

Awaiting approval

Energy Efficiency Rating (EPC)

Current Rating F

Services

Interested parties are requested to make their own enquiries to the relevant authorities as to the availability of services.

Local Authority

Great Yarmouth Borough Council

Solicitors

Shepherd Harris & Co, Ref: Duncan Ritchie

Important Notice to Prospective Buyers:

We draw your attention to the Special Conditions of Sale within the Legal Pack, referring to other charges in addition to the purchase price which may become payable. Such costs may include Search Fees, reimbursement of Sellers costs and Legal Fees, and Transfer Fees amongst others.

Additional Fees

Buyer's Premium - £600 inc VAT payable on exchange of contracts.

Administration Charge - 0.3% inc VAT of the purchase price, subject to a minimum of £1200 inc VAT, payable on exchange of contracts.

Disbursements - Please see the legal pack for any disbursements listed that may become payable by the purchaser on completion.

View Larger Map

Disclaimer: The map preview provided above is for general guidance only and may not accurately reflect the exact location or surrounding buildings. Prospective buyers and interested parties are strongly advised to independently verify the precise location and surroundings before bidding.