Sold Prior | Lot 4

37A & B Denmark Road, Norwich, Norfolk NR3 4JN

Sold Prior

  • Terraced House
  • 2 Bedrooms
  • Tenure: Freehold

Call the team on 01603 505 100 for more information

Auction Date

Wed 27/07/2022

Auction Time

11:00

Auction Venue

Livestream Auction

Viewing Times:

Wed 29 Jun

12:00-13:00

Wed 6 Jul

12:00-13:00

Wed 13 Jul

12:00-13:00

Wed 20 Jul

12:00-13:00

End terraced property converted into two flats in need of some modernisation currently let producing £9,100pa

This Victorian end terraced property was divided approximately 30 years ago into a one bed ground floor flat and a one bedroom first floor flat. Both flats are currently tenanted and producing £9,100 pa (with scope for this to be reviewed). The property is in need of some modernisation and the garden requires some maintenance. Both tenants have expressed they would like to remain at the property, so the purchaser would have a ready made investment. Both flats have their own kitchen and bathroom and the ground floor has access to the bisected rear garden.

Tenure

Freehold

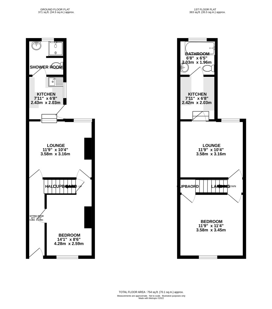
Ground Floor Flat

Entrance porch, hall with stairs to first floor flat, lounge, kitchen, shower room and bedroom. Access to rear garden via the kitchen. Tenant been residing for 10 years and currently paying £340 every four weeks.

First Floor Flat

Landing, bedroom, lounge, kitchen, bathroom

Outside

Enclosed front garden leading to front entrance. Access leads to the rear bisected garden with courtyard area leading to a generous rear garden in need of attention.

Council Tax Band

A

Energy Efficiency Rating (EPC)

Current Rating 37a - e, 37b - D

Services

Interested parties are requested to make their own enquiries to the relevant authorities as to the availability of services.

Local Authority

Broadland District Council

Solicitors

Goodwin Cowley, Ref: Lynda Marriott, Tel: 01502 532700

Important Notice to Prospective Buyers:

We draw your attention to the Special Conditions of Sale within the Legal Pack, referring to other charges in addition to the purchase price which may become payable. Such costs may include Search Fees, reimbursement of Sellers costs and Legal Fees, and Transfer Fees amongst others.

Additional Fees

Buyer's Premium - £960 inc VAT payable on exchange of contracts.

Administration Charge - 0.3% inc VAT of the purchase price, subject to a minimum of £1200 inc VAT, payable on exchange of contracts.

Disbursements - Please see the legal pack for any disbursements listed that may become payable by the purchaser on completion.

View Larger Map

Disclaimer: The map preview provided above is for general guidance only and may not accurately reflect the exact location or surrounding buildings. Prospective buyers and interested parties are strongly advised to independently verify the precise location and surroundings before bidding.