For Sale By Auction | 11:00, 27 July 2022 | Lot 5

11A Grant Street, Norwich NR2 4HA

Sold £175,500

  • Terraced House
  • 3 Bedrooms
  • Tenure: Freehold

Call the team on 01603 505 100 for more information

Auction Date

Wed 27/07/2022

Auction Time

11:00

Auction Venue

Livestream Auction

A three bedroom mid terrace house currently let producing £725 per calendar month

This extended mid terrace house is located near to the University and Norfolk and Norwich hospital and is currently let to an established Assured Shorthold tenant who is paying an annual rent of £8,700. The property has gas central heating, is double glazed and has a pleasant rear garden. Grant Street is situated off Dereham Road within a short walk of the West Norwich Hospital and convenient for access to the city centre, university and Norfolk and Norwich hospital.

Tenure

Freehold

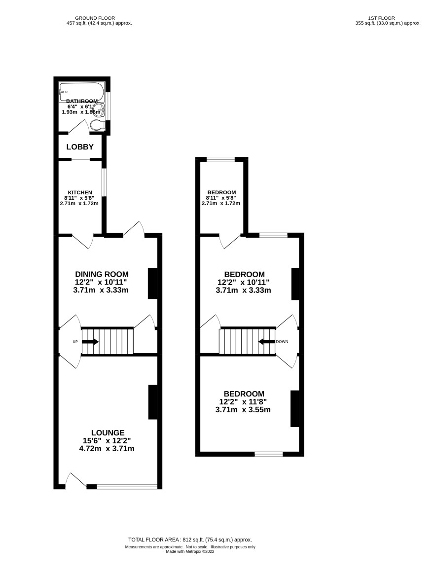
Ground Floor

Lounge, dining room, kitchen, bathroom

First Floor

Landing, three bedrooms

Outside

Small front garden, sheltered rear garden

Council Tax Band

B

Viewings

Open viewings have been arranged in conjunction with the tenants. The next are on Monday 25 July. Please call the Norwich office to book an appointment.

Energy Efficiency Rating (EPC)

Current Rating D

Services

Interested parties are requested to make their own enquiries to the relevant authorities as to the availability of services.

Local Authority

Norwich City Council

Solicitors

Mears Hobbs & Durrant, Ref: Richard Temple

Important Notice to Prospective Buyers:

We draw your attention to the Special Conditions of Sale within the Legal Pack, referring to other charges in addition to the purchase price which may become payable. Such costs may include Search Fees, reimbursement of Sellers costs and Legal Fees, and Transfer Fees amongst others.

Additional Fees

Buyer's Premium - £600 inc VAT payable on exchange of contracts.

Administration Charge - 0.3% inc VAT of the purchase price, subject to a minimum of £1200 inc VAT, payable on exchange of contracts.

Disbursements - Please see the legal pack for any disbursements listed that may become payable by the purchaser on completion.

View Larger Map

Disclaimer: The map preview provided above is for general guidance only and may not accurately reflect the exact location or surrounding buildings. Prospective buyers and interested parties are strongly advised to independently verify the precise location and surroundings before bidding.