For Sale By Auction | 11:00, 14 September 2022 | Lot 47

19 Rectory Road, Dickleburgh, Diss, Norfolk IP21 4NW

Sold £200,500

  • Terraced House
  • 2 Bedrooms
  • Tenure: Freehold

Call the team on 01603 505 100 for more information

Auction Date

Wed 14/09/2022

Auction Time

11:00

Auction Venue

Livestream Auction

A two bedroom mid terrace cottage in excellent condition ideal for owner occupation, investment or holiday use

Situated in a popular location, this delightful mid terrace cottage has been in private ownership for a number of years but is now to be sold vacant. The property is double glazed, has electric combination central heating and has a pleasant outlook over open farmland. It was fully refurbished about 15 years ago and is in good decorative order. Dickleburgh is located just under 6 miles from Diss and 18 miles from Norwich.

Tenure

Freehold

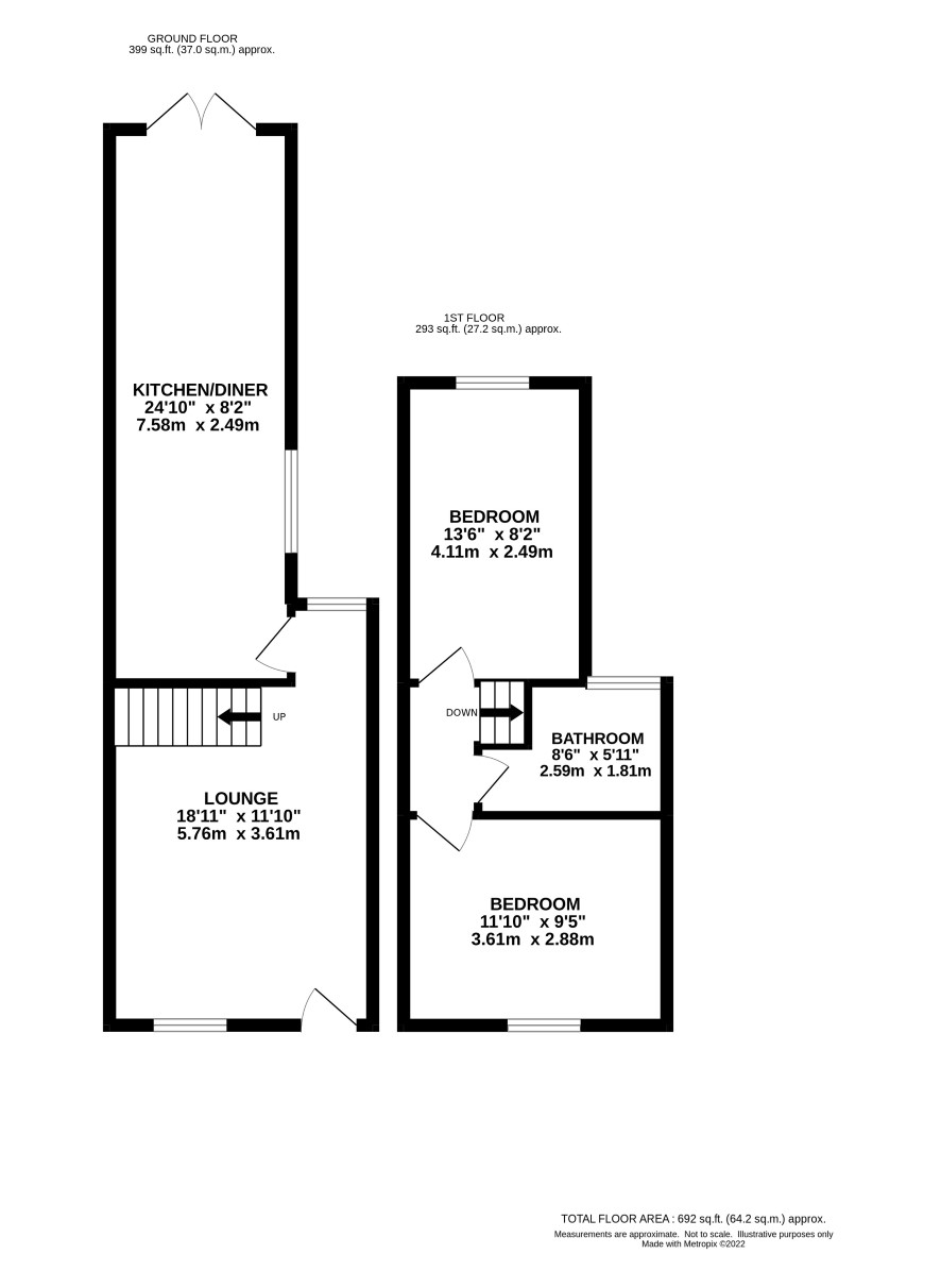
Ground Floor

Lounge, kitchen/diner

First Floor

Small landing, two bedrooms, bathroom

Outside

Neat front garden, delightful rear garden with attractive views over open countryside.

Council Tax Band

B

Viewings

Open Viewings have been arranged for Thursday 8 September. To book a time slot, please call the Norwich office on 01603 505100.

Energy Efficiency Rating (EPC)

Current Rating F

Services

Interested parties are requested to make their own enquiries to the relevant authorities as to the availability of services.

Local Authority

South Norfolk Council

Solicitors

Hayward Moon (Diss), Ref: Denise Smith

Important Notice to Prospective Buyers:

We draw your attention to the Special Conditions of Sale within the Legal Pack, referring to other charges in addition to the purchase price which may become payable. Such costs may include Search Fees, reimbursement of Sellers costs and Legal Fees, and Transfer Fees amongst others.

Additional Fees

Buyer's Premium - £420 inc VAT payable on exchange of contracts.

Administration Charge - 0.3% inc VAT of the purchase price, subject to a minimum of £1200 inc VAT, payable on exchange of contracts.

Disbursements - Please see the legal pack for any disbursements listed that may become payable by the purchaser on completion.

View Larger Map

Disclaimer: The map preview provided above is for general guidance only and may not accurately reflect the exact location or surrounding buildings. Prospective buyers and interested parties are strongly advised to independently verify the precise location and surroundings before bidding.