Withdrawn | Lot 48

15 Agincourt Road, Clacton-On-Sea, Essex CO15 3EB

Withdrawn

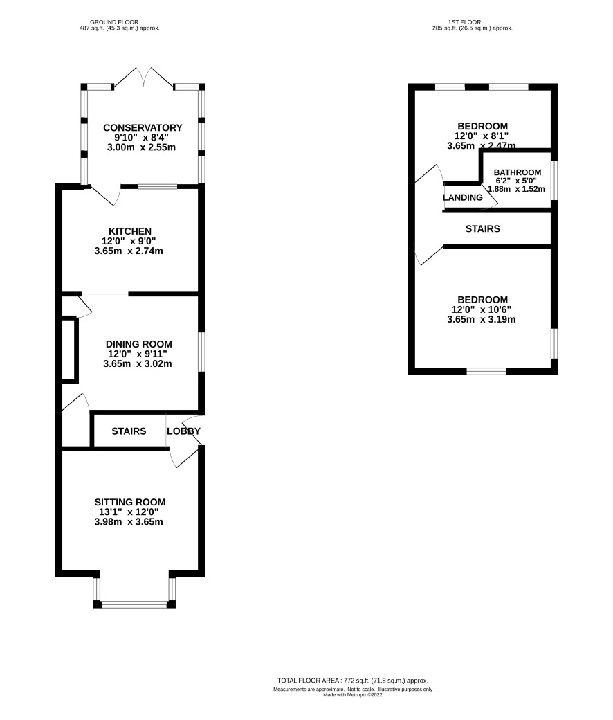
  • Semi-Detached House
  • 2 Bedrooms
  • Tenure: Freehold

Call the team on 01473 558 888 for more information

Auction Date

Wed 14/09/2022

Auction Time

11:00

Auction Venue

Livestream Auction

A well presented semi-detached house suitable for an owner occupier or investor

Having recently undergone a programme of cosmetic improvement including new floor coverings, this semi-detached house which is for sale with vacant possession is ready for immediate occupancy by either an owner occupier or tenant. The property offers 2 bedroom accommodation with roomy ground floor living space and benefits from double glazing and gas central heating. With a 50' rear garden and potential to park a small car to the front (stpp) we believe this to be a competitively priced opportunity not to be missed.

Tenure

Freehold

Council Tax Band

B

Viewing

Open viewings have been scheduled for Thurs 25th & Wed 31st August and Thurs 8th September. BOOKING AN APPOINTMENT IS ESSENTIAL. Please contact our Ipswich office to be allocated the next available slot on your preferred day.

Energy Efficiency Rating (EPC)

Current Rating D

Services

Interested parties are requested to make their own enquiries to the relevant authorities as to the availability of services.

Local Authority

Tendring District Council

Solicitors

Tolhurst Fisher LLP (Southend), Ref: Paul Carpenter, Tel: 01702 352511

Important Notice to Prospective Buyers:

We draw your attention to the Special Conditions of Sale within the Legal Pack, referring to other charges in addition to the purchase price which may become payable. Such costs may include Search Fees, reimbursement of Sellers costs and Legal Fees, and Transfer Fees amongst others.

Additional Fees

Buyer's Premium - £1020 inc VAT payable on exchange of contracts.

Administration Charge - 0.3% inc VAT of the purchase price, subject to a minimum of £1200 inc VAT, payable on exchange of contracts.

Disbursements - Please see the legal pack for any disbursements listed that may become payable by the purchaser on completion.

View Larger Map

Disclaimer: The map preview provided above is for general guidance only and may not accurately reflect the exact location or surrounding buildings. Prospective buyers and interested parties are strongly advised to independently verify the precise location and surroundings before bidding.