For Sale By Auction | 11:00, 14 September 2022 | Lot 31

33 Regent Street, Great Yarmouth, Norfolk NR30 1RR

Sold £138,500

  • Commercial Property
  • Tenure: Freehold

Call the team on 01603 505 100 for more information

Auction Date

Wed 14/09/2022

Auction Time

11:00

Auction Venue

Livestream Auction

Freehold three storey town centre commercial property extending to 2,271 sq/ft offering potential

This terraced building was previously let to an estate agents and latterly a charity at £15,000 pa, and is now to be sold with vacant possession. The ground floor provides an open plan retailing area with large display window, tiled floor, electric heating, spot lighting and also a cloakroom. The upper two floors offer potential for residential conversion to two spacious flats, one south facing, subject to the necessary consents. Behind the building is a reasonably sized plot of land suitable to erect a storage building for the shop. According to the valuation office website the shop and premises has an area of 211 sq/m and a rateable value of £8,500 with effect from 1st April 2017.

Tenure

Freehold

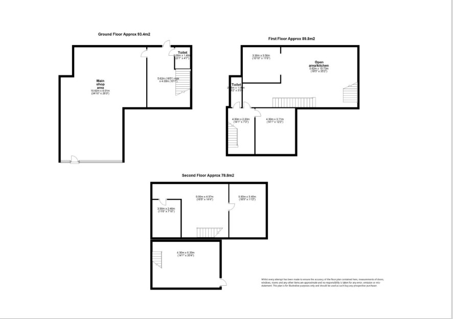
Ground floor

Main shop area, wc, store 959 sq/ft (89.1 sq/m)

First floor

Kitchen, staff room, offices, storage, wc 553 sq/ft (51.4 sq/m)

Second floor

Four office / storage rooms 759 sq/ft (70.5 sq/m)

Outside

Rear plot of land with potential

Viewings

Open viewings are arranged and the next are Tuesday 6 September. Please call the Norwich office to book an appointment.

Energy Efficiency Rating (EPC)

Current Rating D

Services

Interested parties are requested to make their own enquiries to the relevant authorities as to the availability of services.

Local Authority

Great Yarmouth Borough Council

Solicitors

Chamberlins (Great Yarmouth), Ref: Paul Ward, Tel: 01493 720019

Offered in association with

East Commercial

Important Notice to Prospective Buyers:

We draw your attention to the Special Conditions of Sale within the Legal Pack, referring to other charges in addition to the purchase price which may become payable. Such costs may include Search Fees, reimbursement of Sellers costs and Legal Fees, and Transfer Fees amongst others.

Additional Fees

Buyer's Premium - £900 inc VAT payable on exchange of contracts.

Administration Charge - 0.3% inc VAT of the purchase price, subject to a minimum of £1200 inc VAT, payable on exchange of contracts.

Disbursements - Please see the legal pack for any disbursements listed that may become payable by the purchaser on completion.

View Larger Map

Disclaimer: The map preview provided above is for general guidance only and may not accurately reflect the exact location or surrounding buildings. Prospective buyers and interested parties are strongly advised to independently verify the precise location and surroundings before bidding.