For Sale By Auction | 11:00, 26 October 2022 | Lot 2

63 Park Lane, Norwich, Norfolk NR2 3EF

Sold £310,000

  • Terraced House
  • Tenure: Freehold

Call the team on 01603 505 100 for more information

Auction Date

Wed 26/10/2022

Auction Time

11:00

Auction Venue

Livestream Auction

A bay fronted hall entrance terrace located in the Golden Triangle currently divided into two self contained flats (one let)

This hall entrance terrace house was converted into a two bedroom first floor flat and a one bedroom ground floor flat in 1963 and has been successfully let continuously since then under the same ownership producing a good rental yield. The flats are serviced independently and are in reasonable order although some updating is now required. Alternatively the property could be returned to an impressive single dwelling. The first floor two bedroom flat has recently become vacant whilst the ground floor flat is let to an Assured Shorthold Tenant paying a rent of £620 per calendar month. Park Lane is situated off Unthank Road convenient for the University, Hospital and town centre.

Tenure

Freehold

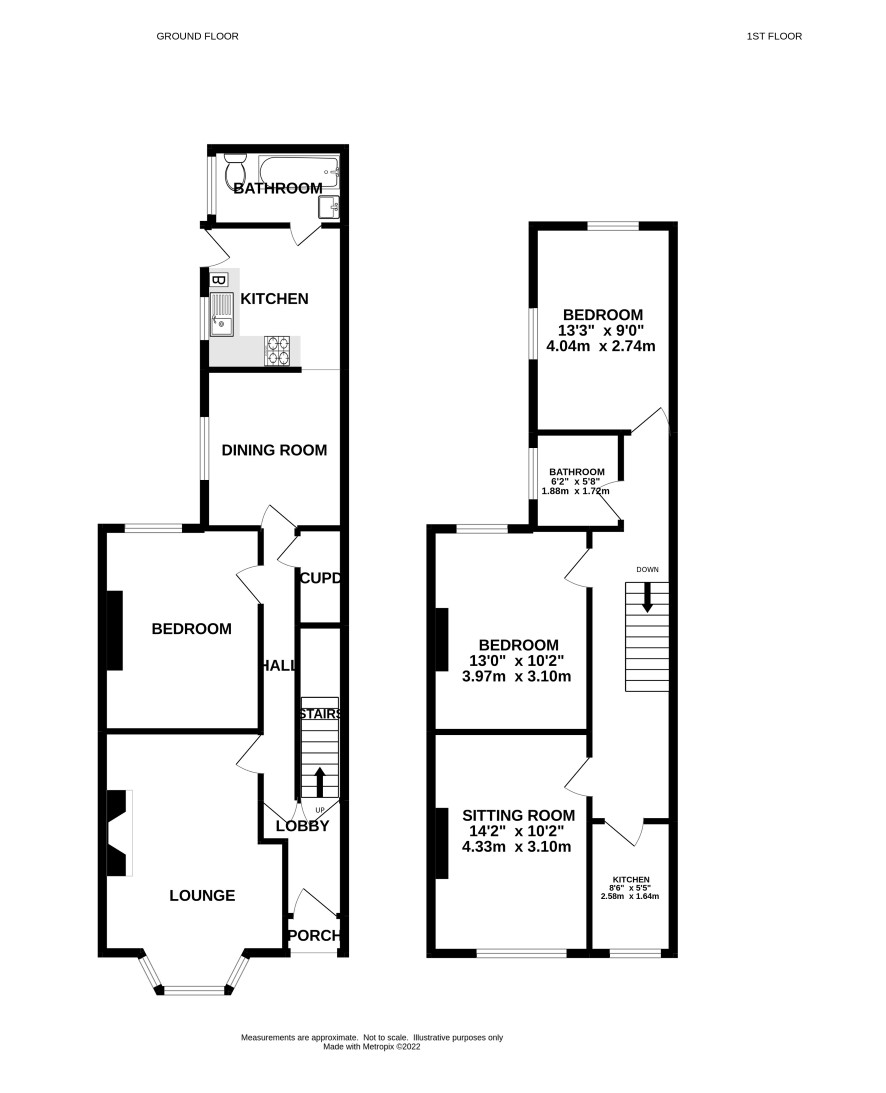
Ground Floor

Shared entrance hall, Flat 1: hall, lounge, bedroom, dining room, kitchen, bathroom.

First Floor

Flat 2: Landing, lounge, kitchen, 2 bedrooms, bathroom.

Outside

Enclosed mainly paved front garden. Rear garden currently for the use of the ground floor flat with rear pedestrian access.

Council Tax Band

B

Viewings

Open Viewings are arranged with the tenant, the next are Friday 21 October. To book a specific time slot please call the Norwich office on 01603 505100.

Energy Efficiency Rating (EPC)

Current Rating D

Services

Interested parties are requested to make their own enquiries to the relevant authorities as to the availability of services.

Local Authority

Norwich City Council

Solicitors

Rogers and Norton (Attleborough), Ref: David Percival, Tel: 01953458163

Important Notice to Prospective Buyers:

We draw your attention to the Special Conditions of Sale within the Legal Pack, referring to other charges in addition to the purchase price which may become payable. Such costs may include Search Fees, reimbursement of Sellers costs and Legal Fees, and Transfer Fees amongst others.

Additional Fees

Buyer's Premium - £950 inc VAT payable on exchange of contracts.

Administration Charge - 0.3% inc VAT of the purchase price, subject to a minimum of £1200 inc VAT, payable on exchange of contracts.

Disbursements - Please see the legal pack for any disbursements listed that may become payable by the purchaser on completion.

View Larger Map

Disclaimer: The map preview provided above is for general guidance only and may not accurately reflect the exact location or surrounding buildings. Prospective buyers and interested parties are strongly advised to independently verify the precise location and surroundings before bidding.