For Sale By Auction | 11:00, 26 October 2022 | Lot 3

83 Bevan Street West, Lowestoft, Suffolk NR32 2AE

Sold £81,000

  • Terraced House
  • 2 Bedrooms
  • Tenure: Freehold

Call the team on 01603 505 100 for more information

Auction Date

Wed 26/10/2022

Auction Time

11:00

Auction Venue

Livestream Auction

A vacant two bedroom terrace requiring modernisation

A traditional two bedroom terrace house now vacant and ready for a program of restoration and redecoration. The property which has two reception rooms and two bedrooms is ideal for investment or as a builder refurbishment project. There is a small private rear garden also in need of attention. The town centre, railway station and sea front are all within walking distance

Tenure

Freehold

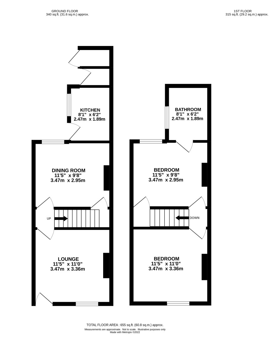
Ground Floor

Lounge, dining room, kitchen

First Floor

2 double bedrooms, bathroom

Outside

Rear garden with outside store shed.

Council Tax Rating

A

Viewings

Open viewings are arranged and the next are Thursday 20 and Monday 24 October. To book an appointment please call the Norwich office

Energy Efficiency Rating (EPC)

Current Rating G

Services

Interested parties are requested to make their own enquiries to the relevant authorities as to the availability of services.

Local Authority

Waveney District Council

Solicitors

Ward Gethin Archer (Dereham), Ref: Tracy Guest, Tel: 01362 692182

Important Notice to Prospective Buyers:

We draw your attention to the Special Conditions of Sale within the Legal Pack, referring to other charges in addition to the purchase price which may become payable. Such costs may include Search Fees, reimbursement of Sellers costs and Legal Fees, and Transfer Fees amongst others.

Additional Fees

Buyer's Premium - £600 inc VAT payable on exchange of contracts.

Administration Charge - 0.3% inc VAT of the purchase price, subject to a minimum of £1200 inc VAT, payable on exchange of contracts.

Disbursements - Please see the legal pack for any disbursements listed that may become payable by the purchaser on completion.

View Larger Map

Disclaimer: The map preview provided above is for general guidance only and may not accurately reflect the exact location or surrounding buildings. Prospective buyers and interested parties are strongly advised to independently verify the precise location and surroundings before bidding.