For Sale By Auction | 11:00, 26 October 2022 | Lot 77

33 Nelson Road South, Great Yarmouth, Norfolk NR30 3JA

Sold After

  • Terraced House
  • 5 Bedrooms
  • Tenure: Leasehold

Call the team on 01603 505 100 for more information

Auction Date

Wed 26/10/2022

Auction Time

11:00

Auction Venue

Livestream Auction

This substantial leasehold property in need of some refurbishment is situated in the well-known seaside resort of Great Yarmouth.

This is a substantial rare leasehold property in need of refurbishment. The owners have commenced some restoration of the property, leaving original features and stripping woodwork to sympathetically restore this family home. Offering spacious accommodation this property would benefit someone looking for a project. The property benefits from a cellar accessed by staircase in the property and a hatch within the rear courtyard.

Tenure

Leasehold

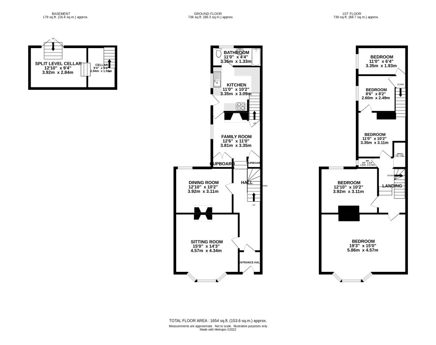
Ground floor

Entrance lobby, hall, sitting room, dining room, snug, kitchen, bathroom

First floor

Landing, five bedrooms, two are interconnected

Basement

Storage area

Outside

Walled front garden with gate leading to the front entrance. Access to the rear leads to a courtyard with access to the cellar and interesting mural on the adjoining party wall.

Council Tax Band

C

Leasehold Information

Term: 999 years from 25 March 1863 (840 years remaining) Annual ground rent amount: To be confirmed Ground rent review period: To be confirmed Annual service charge amount: To be confirmed Service charge review period: To be confirmed

Energy Efficiency Rating (EPC)

Current Rating C

Services

Interested parties are requested to make their own enquiries to the relevant authorities as to the availability of services.

Local Authority

Great Yarmouth Borough Council

Solicitors

HKB Wiltshires (Great Yarmouth), Ref: Samantha Brannigan, Tel: 01493 855676

Important Notice to Prospective Buyers:

We draw your attention to the Special Conditions of Sale within the Legal Pack, referring to other charges in addition to the purchase price which may become payable. Such costs may include Search Fees, reimbursement of Sellers costs and Legal Fees, and Transfer Fees amongst others.

Additional Fees

Buyer's Premium - £960 inc VAT payable on exchange of contracts.

Administration Charge - 0.3% inc VAT of the purchase price, subject to a minimum of £1200 inc VAT, payable on exchange of contracts.

Disbursements - Please see the legal pack for any disbursements listed that may become payable by the purchaser on completion.

View Larger Map

Disclaimer: The map preview provided above is for general guidance only and may not accurately reflect the exact location or surrounding buildings. Prospective buyers and interested parties are strongly advised to independently verify the precise location and surroundings before bidding.