Postponed | Lot 79

14 Manor Road, Gorleston, Great Yarmouth, Norfolk NR31 0QA

Postponed

  • Terraced House
  • 3 Bedrooms
  • Tenure: Freehold

Call the team on 01603 505 100 for more information

Auction Date

Wed 26/10/2022

Auction Time

11:00

Auction Venue

Livestream Auction

A three bedroom town house requiring updating

Located in a popular residential neighbourhood this three bedroom townhouse is now vacant and in need of some minor updating and redecoration. The property has a lounge, spacious kitchen/diner, conservatory and bathroom on the ground floor and three bedrooms off landing on the first floor. To the rear of the property is a private and well stocked garden. The house is ideal for owner occupation, investment or first purchase. Local shops, schools and other amenities including the James Paget Hospital are located nearby.

Tenure

Freehold

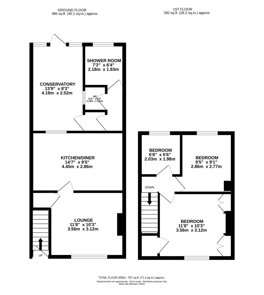
Ground Floor

Hall, lounge, kitchen/diner, rear lobby, wet room, separate w.c., conservatory

First Floor

Landing, three bedrooms

Outside

Front garden, fully enclosed private rear garden.

Council Tax Band

A

Viewings

Open viewings are being arranged and the next are Tuesday 18 and Thursday 20 October. Please call the Norwich office to book an appointment. 01603 505100

Energy Efficiency Rating (EPC)

Current Rating D

Services

Interested parties are requested to make their own enquiries to the relevant authorities as to the availability of services.

Local Authority

Great Yarmouth Borough Council

Solicitors

HKB Wiltshires (Great Yarmouth), Ref: Sarah Harris, Tel: 01493 855676

Important Notice to Prospective Buyers:

We draw your attention to the Special Conditions of Sale within the Legal Pack, referring to other charges in addition to the purchase price which may become payable. Such costs may include Search Fees, reimbursement of Sellers costs and Legal Fees, and Transfer Fees amongst others.

Additional Fees

Buyer's Premium - £420 inc VAT payable on exchange of contracts.

Administration Charge - 0.3% inc VAT of the purchase price, subject to a minimum of £1200 inc VAT, payable on exchange of contracts.

Disbursements - Please see the legal pack for any disbursements listed that may become payable by the purchaser on completion.

View Larger Map

Disclaimer: The map preview provided above is for general guidance only and may not accurately reflect the exact location or surrounding buildings. Prospective buyers and interested parties are strongly advised to independently verify the precise location and surroundings before bidding.