For Sale By Auction | 11:00, 26 October 2022 | Lot 5

Flat 1 & 2, 27 Hall Road, Norwich, Norfolk NR1 3HQ

Sold £130,000

  • Block of Apartments
  • Tenure: Freehold

Call the team on 01603 505 100 for more information

Auction Date

Wed 26/10/2022

Auction Time

11:00

Auction Venue

Livestream Auction

Detached building currently arranged as two flats with planning permission to redevelop into three flats

This single storey building located behind The Freemasons pub is accessed off Hobart Square. It comprises two one bedroom flats, has gas central heating, is partially double glazed and requires improvement. Flat 1 at the front is currently let at £135 per week (£7,202 pa) however will be sold with vacant possession. Flat 2 at the rear was let at £125 per week (£6,500 pa) and is now vacant. The building was formerly a function room for the pub known as The Nelson Room and has been flats for many years. The pub is being offered as a separate lot.

Tenure

Freehold

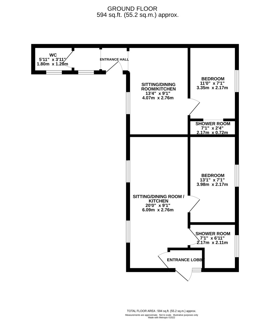
Flat 1

Entrance lobby, sitting room / dining room / kitchen, shower room with wc, bedroom

Flat 2

Entrance hall, sitting room / dining room / kitchen, bedroom, shower room

Outside

Separate garden area for each flat

Planning

Full planning permission was granted by Norwich City Council on 1st December 2021 to demolish the rear unit and construct a three storey building with three one bedroom flats. Application number 21/01029/F. Further details and plans can be found on the public access website of Norwich City Council norwich.gov.uk/planning.

Council Tax Band

A

Viewings

Open viewings are arranged and the next are on Wednesday 12 and Tuesday 18 October. To book an appointment please call the Norwich office.

Energy Efficiency Rating (EPC)

Current Rating E

Services

Interested parties are requested to make their own enquiries to the relevant authorities as to the availability of services.

Local Authority

Norwich City Council

Solicitors

Maitland Walker, 17 The Crescent, Ref: Ben Slade, Tel: 01823 745777

Important Notice to Prospective Buyers:

We draw your attention to the Special Conditions of Sale within the Legal Pack, referring to other charges in addition to the purchase price which may become payable. Such costs may include Search Fees, reimbursement of Sellers costs and Legal Fees, and Transfer Fees amongst others.

Additional Fees

Buyer's Premium - £900 inc VAT payable on exchange of contracts.

Administration Charge - 0.3% inc VAT of the purchase price, subject to a minimum of £1200 inc VAT, payable on exchange of contracts.

Disbursements - Please see the legal pack for any disbursements listed that may become payable by the purchaser on completion.

View Larger Map

Disclaimer: The map preview provided above is for general guidance only and may not accurately reflect the exact location or surrounding buildings. Prospective buyers and interested parties are strongly advised to independently verify the precise location and surroundings before bidding.