For Sale By Auction | 11:00, 08 February 2023 | Lot 3

57 Silver Road, Norwich, Norfolk NR3 4TD

Sold £135,000

  • Terraced House
  • 3 Bedrooms
  • Tenure: Freehold

Call the team on 01603 505 100 for more information

Auction Date

Wed 08/02/2023

Auction Time

11:00

Auction Venue

Livestream Auction

Three bedroom bay fronted mid terrace house close to the city centre

This property is situated around a mile north of the city centre, close to a range of services and amenities. It benefits from gas fired central heating and is double glazed throughout. It was previously let at £775 pcm (£9,300 pa), has been in the same ownership for over twenty years, and is now to be sold with vacant possession. The property requires remedial repair to the rear and would suit a cash buyer. This would be an ideal purchase for an owner occupier or investor.

Tenure

Freehold

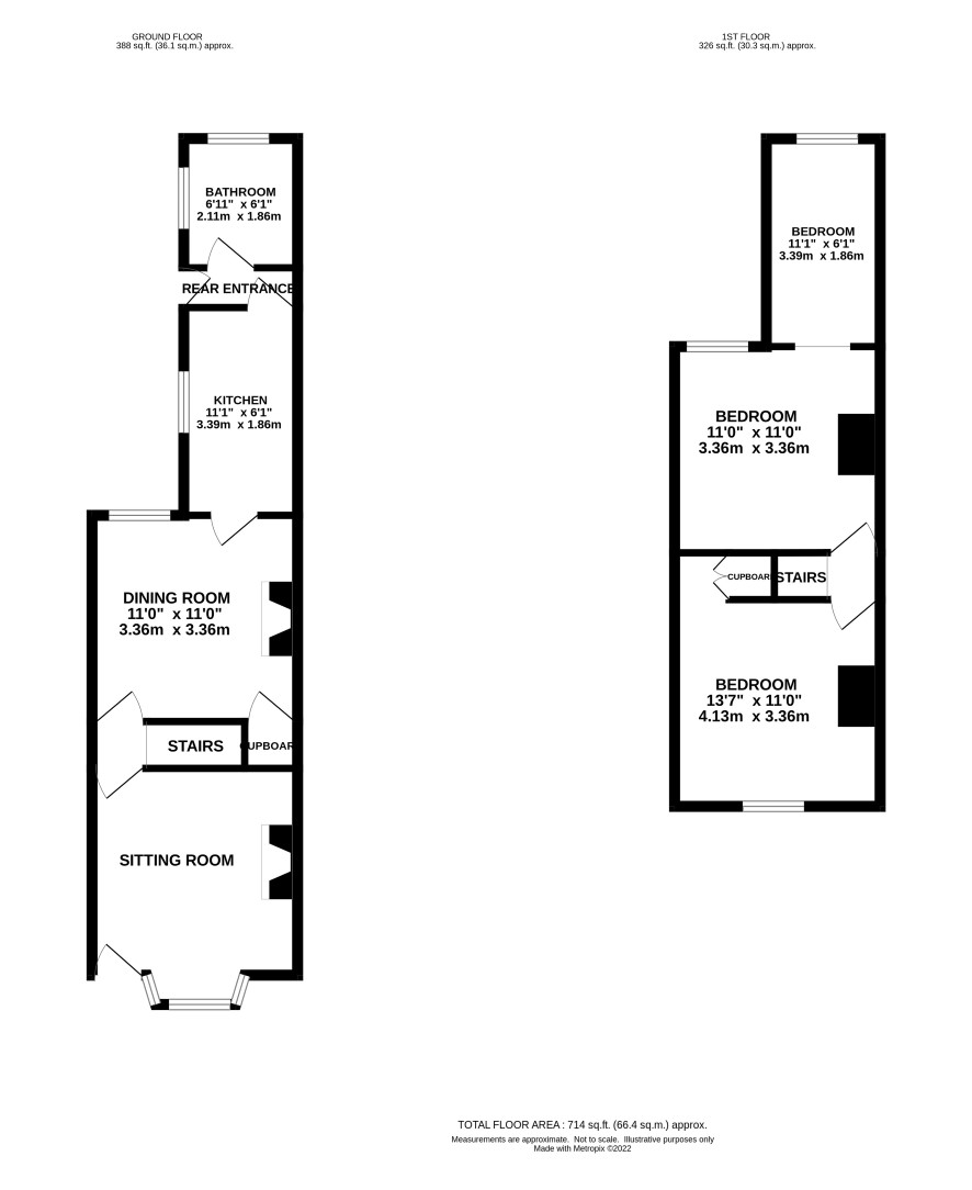
Ground floor

Sitting room, dining room, kitchen, bathroom

First floor

Three bedrooms (third through the second)

Outside

Front and rear garden, garden shed

Council Tax Band

A

Viewing

Open Viewings are arranged for Monday 6 February. APPOINTMENT ESSENTIAL, please call our Norwich office to be allocated an appointment.

Energy Efficiency Rating (EPC)

Current Rating D

Services

Interested parties are requested to make their own enquiries to the relevant authorities as to the availability of services.

Local Authority

Norwich City Council

Solicitors

Bindman and Co, Ref: Les Brand

Important Notice to Prospective Buyers:

We draw your attention to the Special Conditions of Sale within the Legal Pack, referring to other charges in addition to the purchase price which may become payable. Such costs may include Search Fees, reimbursement of Sellers costs and Legal Fees, and Transfer Fees amongst others.

Additional Fees

Administration Charge - 0.3% inc VAT of the purchase price, subject to a minimum of £1200 inc VAT, payable on exchange of contracts.

Disbursements - Please see the legal pack for any disbursements listed that may become payable by the purchaser on completion.

View Larger Map

Disclaimer: The map preview provided above is for general guidance only and may not accurately reflect the exact location or surrounding buildings. Prospective buyers and interested parties are strongly advised to independently verify the precise location and surroundings before bidding.