For Sale By Auction | 11:00, 08 February 2023 | Lot 2

2 Low Bungay Road, Loddon, Norwich, Norfolk NR14 6JW

Sold £212,000

  • Semi-Detached House
  • 3 Bedrooms
  • Tenure: Freehold

Call the team on 01603 505 100 for more information

Auction Date

Wed 08/02/2023

Auction Time

11:00

Auction Venue

Livestream Auction

A two/three bedroom semi-detached house with character and immediate kerb appeal requiring modernisation

Situated in a sought after location, this Grade ll listed semi-detached house has been tenanted for a number of years but is now to be sold vacant. The property is in need of updating but could provide an excellent family home, investment or project for builder to do up and sell on. Potential may exist to extend the existing accommodation (subject to planning approval). Loddon town centre is within walking distance and the town benefits from a wide range of community facilities, all levels of schools and has good access to the east Norfolk coastline and Norfolk Broads.

Tenure

Freehold

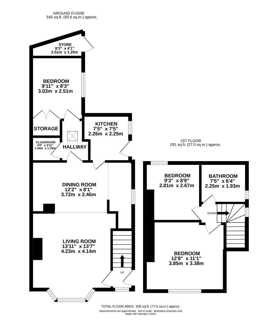
Ground Floor

Entrance lobby, lounge/diner, kitchen, inner lobby, cloakroom, study/bedroom three.

First Floor

Landing, two bedrooms, bathroom

Outside

Gardens mainly to the side with parking area and garage, outside store/shed

Council Tax

B

Viewing

Viewings are being held and the next are on Monday 6 February. Please contact the Norwich Office to book a slot

Energy Efficiency Rating (EPC)

Current Rating D

Services

Interested parties are requested to make their own enquiries to the relevant authorities as to the availability of services.

Local Authority

South Norfolk Council

Solicitors

Howes Percival (Norwich), Ref: Sally Rackham, Tel: 01603 284250

Important Notice to Prospective Buyers:

We draw your attention to the Special Conditions of Sale within the Legal Pack, referring to other charges in addition to the purchase price which may become payable. Such costs may include Search Fees, reimbursement of Sellers costs and Legal Fees, and Transfer Fees amongst others.

Additional Fees

Buyer's Premium - £900 inc VAT payable on exchange of contracts.

Administration Charge - 0.3% inc VAT of the purchase price, subject to a minimum of £1200 inc VAT, payable on exchange of contracts.

Disbursements - Please see the legal pack for any disbursements listed that may become payable by the purchaser on completion.

View Larger Map

Disclaimer: The map preview provided above is for general guidance only and may not accurately reflect the exact location or surrounding buildings. Prospective buyers and interested parties are strongly advised to independently verify the precise location and surroundings before bidding.