For Sale By Auction | 11:00, 08 February 2023 | Lot 84

145 St. Peters Street, Lowestoft, Suffolk NR32 1UB

Sold After

  • Terraced House
  • 5 Bedrooms
  • Tenure: Freehold

Call the team on 01473 558 888 for more information

Auction Date

Wed 08/02/2023

Auction Time

11:00

Auction Venue

Livestream Auction

High yielding five-bedroom terrace house towards the centre of Lowestoft

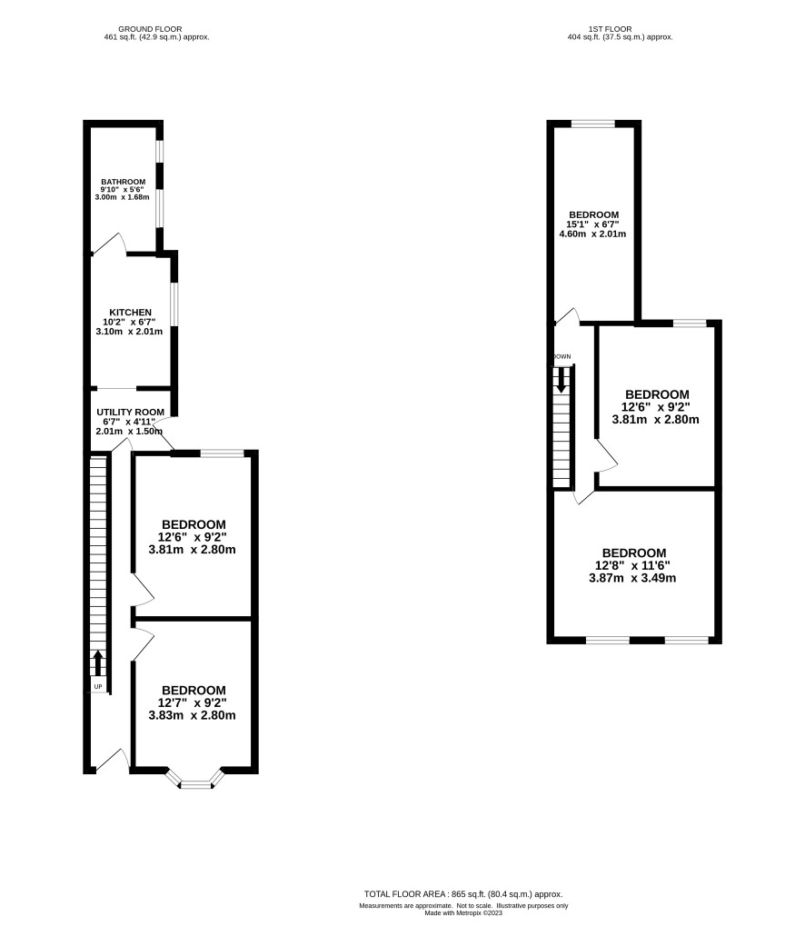
The property presents a fantastic investment opportunity, comprising five letting rooms, a bathroom, a utility room and a kitchen, extending over two storeys. It is located towards the centre of Lowestoft and benefits from a garden to the rear. The property currently generates a gross income of over £27,000 per annum delivering a compelling yield of up to 17%.

Tenure

Freehold

Ground Floor

Two bedrooms Utility Room Kitchen Bathroom

First Floor

Three bedrooms

Viewings

Viewings are being held by APPOINTMENT ONLY. The next opportunity to view is on Friday 3 February. Please contact us to book a slot.

Energy Efficiency Rating (EPC)

Current Rating D

Services

Interested parties are requested to make their own enquiries to the relevant authorities as to the availability of services.

Local Authority

East Suffolk Council

Solicitors

HKB Wiltshires (Lowestoft), Ref: Philip Tuttle, Tel: 01502 582338

Important Notice to Prospective Buyers:

We draw your attention to the Special Conditions of Sale within the Legal Pack, referring to other charges in addition to the purchase price which may become payable. Such costs may include Search Fees, reimbursement of Sellers costs and Legal Fees, and Transfer Fees amongst others.

Additional Fees

Buyer's Premium - £1200 inc VAT payable on exchange of contracts.

Administration Charge - 0.3% inc VAT of the purchase price, subject to a minimum of £1200 inc VAT, payable on exchange of contracts.

Disbursements - Please see the legal pack for any disbursements listed that may become payable by the purchaser on completion.

View Larger Map

Disclaimer: The map preview provided above is for general guidance only and may not accurately reflect the exact location or surrounding buildings. Prospective buyers and interested parties are strongly advised to independently verify the precise location and surroundings before bidding.