For Sale By Auction | 11:00, 08 February 2023 | Lot 85

378 Beccles Road, Carlton Colville, Lowestoft, Suffolk NR33 8HN

Sold £160,000

  • Detached Bungalow
  • 4 Bedrooms
  • Tenure: Freehold

Call the team on 01603 505 100 for more information

Auction Date

Wed 08/02/2023

Auction Time

11:00

Auction Venue

Livestream Auction

Detached non-standard construction bungalow with planning permission to replace with a superior property

Of interest to cash buyers is this prefabricated bungalow with planning permission to demolish and build an executive detached chalet style dwelling with separate detached annexe. It is set on a good size plot extending to around a third of an acre. An ideal project for a builder / developer.

Tenure

Freehold

Existing Accommodation

Porch, entrance hall, two bedrooms, sitting room, bathroom / shower room, kitchen / dining room, conservatory, wc

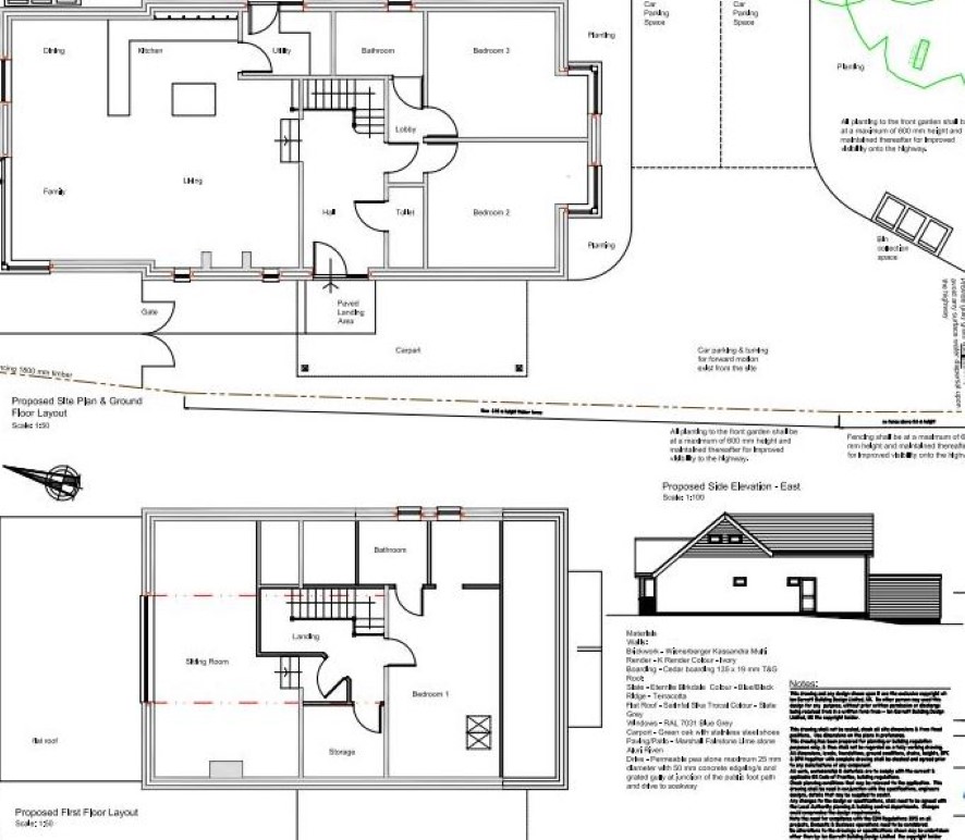
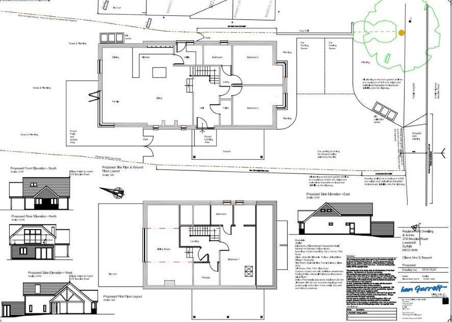
Proposed Accommodation

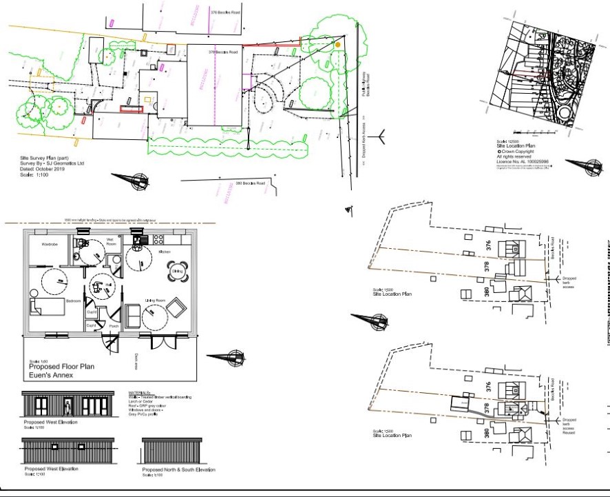
Ground floor: Entrance hall, open plan kitchen, dining, living room, two bedrooms, bathroom, wc First floor: Landing, bathroom, sitting room, bedroom Annex: Porch, entrance hall, bedroom, wet room, kitchen / living room

Outside

Front and rear garden in need of attention, off road parking

Council Tax Band

A

Planning

Full planning permission was granted by East Suffolk Council on 29th January 2020 for construction of dwelling and annexe replacement. Application number: DC//19/4776/FUL. Further details and plans can be found on the public access website of East Suffolk Council eastsuffolk.gov.uk/planning. The current permission expires at the end of January.

Viewings

Open viewings are being held by appointment only. The next are on Wednesday, 1st February. Please contact the Norwich Office to book a slot.

Energy Efficiency Rating (EPC)

Current Rating E

Services

Interested parties are requested to make their own enquiries to the relevant authorities as to the availability of services.

Local Authority

East Suffolk Council

Solicitors

Mears Hobbs and Durrant (Lowestoft), Ref: Richard Temple, Tel: 07908 987100

Important Notice to Prospective Buyers:

We draw your attention to the Special Conditions of Sale within the Legal Pack, referring to other charges in addition to the purchase price which may become payable. Such costs may include Search Fees, reimbursement of Sellers costs and Legal Fees, and Transfer Fees amongst others.

Additional Fees

Buyer's Premium - £900 inc VAT payable on exchange of contracts.

Administration Charge - 0.3% inc VAT of the purchase price, subject to a minimum of £1200 inc VAT, payable on exchange of contracts.

Disbursements - Please see the legal pack for any disbursements listed that may become payable by the purchaser on completion.

View Larger Map

Disclaimer: The map preview provided above is for general guidance only and may not accurately reflect the exact location or surrounding buildings. Prospective buyers and interested parties are strongly advised to independently verify the precise location and surroundings before bidding.