For Sale By Auction | 11:00, 08 February 2023 | Lot 51

113 Elm Low Road, Wisbech, Cambridgeshire PE14 0DF

Sold £120,000

  • Land
  • Tenure: Freehold

Call the team on 01733 889833 for more information

Auction Date

Wed 08/02/2023

Auction Time

11:00

Auction Venue

Livestream Auction

A building plot on the edge of Wisbech with re applied for planning for a four bedroom detached house

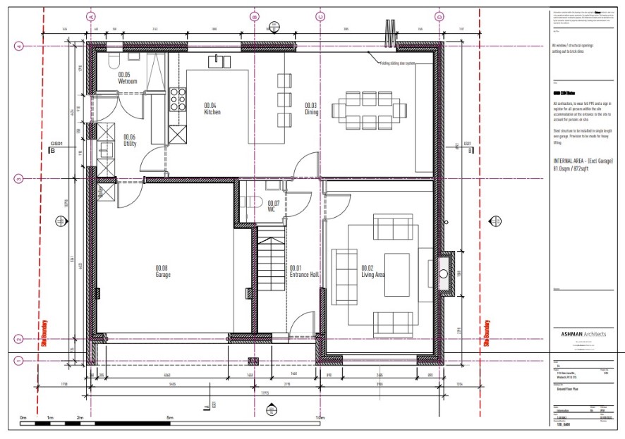
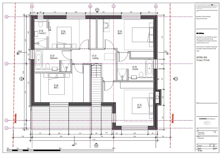
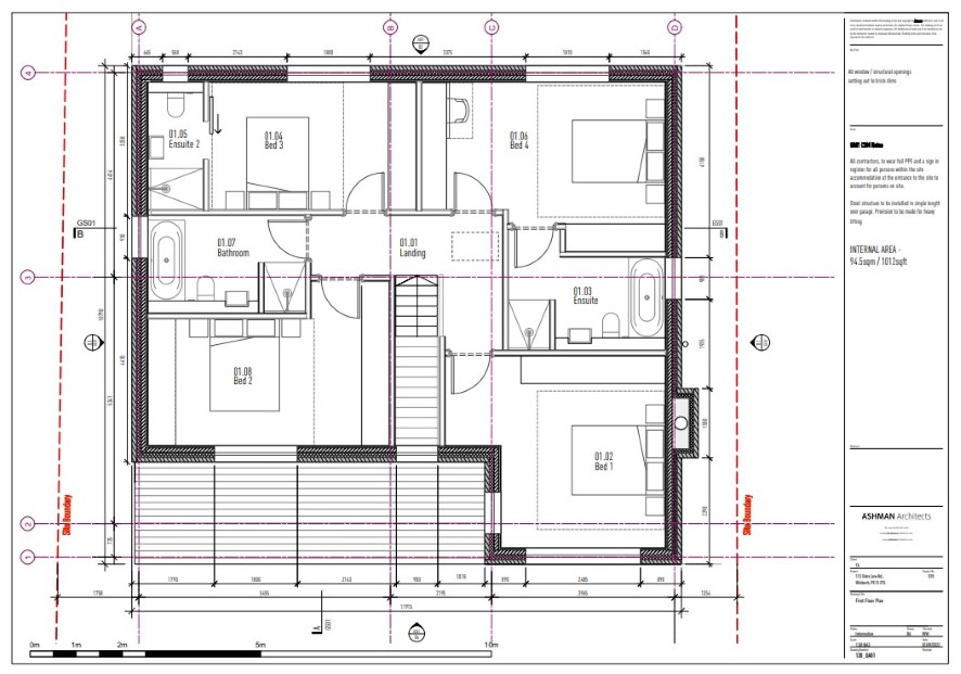
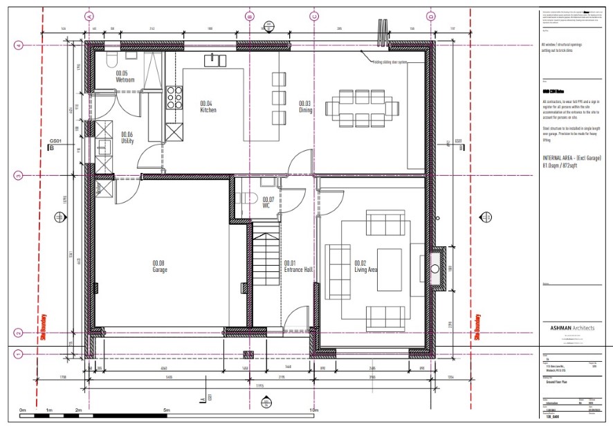
A building plot measuring 41.5m x 14m located on the edge of Wisbech with re applied planning permission for a detached four bedroom house. Planning reference Fenland District Council F/YR23/0061/F. The proposed accommodation comprises hall, lounge, kitchen/diner, wet room and utility room. On the first floor you will find four bedrooms, two with en-suite shower/bathroom and a family bathroom. Wisbech lies between Kings Lynn and Peterborough both with rail links into London Kings Cross. The town offers shopping and schooling.

Tenure

Freehold

Proposed Ground Floor Accommodation

Hall, lounge, kitchen/diner, wet room and utility room. Integral garage.

Proposed First Floor Accommodation

Two bedrooms with ensuite shower/bathroom, two further bedrooms and a family bathroom.

Services

Interested parties are requested to make their own enquiries to the relevant authorities as to the availability of services.

Local Authority

Fenland District Council

Solicitors

Bindman and Co, Ref: Claire Stanton, Tel: 0191 432 4408

Important Notice to Prospective Buyers:

We draw your attention to the Special Conditions of Sale within the Legal Pack, referring to other charges in addition to the purchase price which may become payable. Such costs may include Search Fees, reimbursement of Sellers costs and Legal Fees, and Transfer Fees amongst others.

Additional Fees

Buyer's Premium - £600 inc VAT payable on exchange of contracts.

Administration Charge - 0.3% inc VAT of the purchase price, subject to a minimum of £1200 inc VAT, payable on exchange of contracts.

Disbursements - Please see the legal pack for any disbursements listed that may become payable by the purchaser on completion.

View Larger Map

Disclaimer: The map preview provided above is for general guidance only and may not accurately reflect the exact location or surrounding buildings. Prospective buyers and interested parties are strongly advised to independently verify the precise location and surroundings before bidding.