For Sale By Auction | 11:00, 08 February 2023 | Lot 25

5 Maud Terrace, Great Yarmouth, Norfolk NR30 4JD

Sold After

  • Terraced House
  • 3 Bedrooms
  • Tenure: Freehold

Call the team on 01603 505 100 for more information

Auction Date

Wed 08/02/2023

Auction Time

11:00

Auction Venue

Livestream Auction

A three bedroom hall entrance terrace house requiring update

This vacant terrace house has gas central heating, double glazing but would now benefit from general updating and redecoration. The property is tucked away in a quiet street close to shops and a variety of community facilities and within walking distance of the sea front. The house is ideal for owner occupation or investment.

Tenure

Freehold

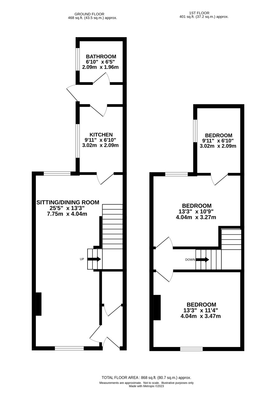
Ground Floor

Hall, lounge/diner/ kitchen, bathroom

First Floor

Landing, 3 bedrooms

Outside

Front and rear gardens lean to store shed. Rear pedestrian right of way.

Council Tax Band

A

Viewing

Individual viewings can be arranged - the next are on Friday 3 February. APPOINTMENT ESSENTIAL - please call to arrange the next available slot.

Energy Efficiency Rating (EPC)

Current Rating D

Services

Interested parties are requested to make their own enquiries to the relevant authorities as to the availability of services.

Local Authority

Great Yarmouth Borough Council

Solicitors

Chamberlins (Great Yarmouth), Ref: Rebekah Leach, Tel: 01493857621

Important Notice to Prospective Buyers:

We draw your attention to the Special Conditions of Sale within the Legal Pack, referring to other charges in addition to the purchase price which may become payable. Such costs may include Search Fees, reimbursement of Sellers costs and Legal Fees, and Transfer Fees amongst others.

Additional Fees

Buyer's Premium - £420 inc VAT payable on exchange of contracts.

Administration Charge - 0.3% inc VAT of the purchase price, subject to a minimum of £1200 inc VAT, payable on exchange of contracts.

Disbursements - Please see the legal pack for any disbursements listed that may become payable by the purchaser on completion.

View Larger Map

Disclaimer: The map preview provided above is for general guidance only and may not accurately reflect the exact location or surrounding buildings. Prospective buyers and interested parties are strongly advised to independently verify the precise location and surroundings before bidding.