For Sale By Auction | 11:00, 08 February 2023 | Lot 26

16 Wellesley Road, Great Yarmouth, Norfolk NR30 2AR

Sold £148,000

  • Terraced House
  • Tenure: Freehold

Call the team on 01603 505 100 for more information

Auction Date

Wed 08/02/2023

Auction Time

11:00

Auction Venue

Livestream Auction

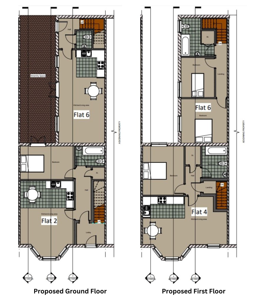
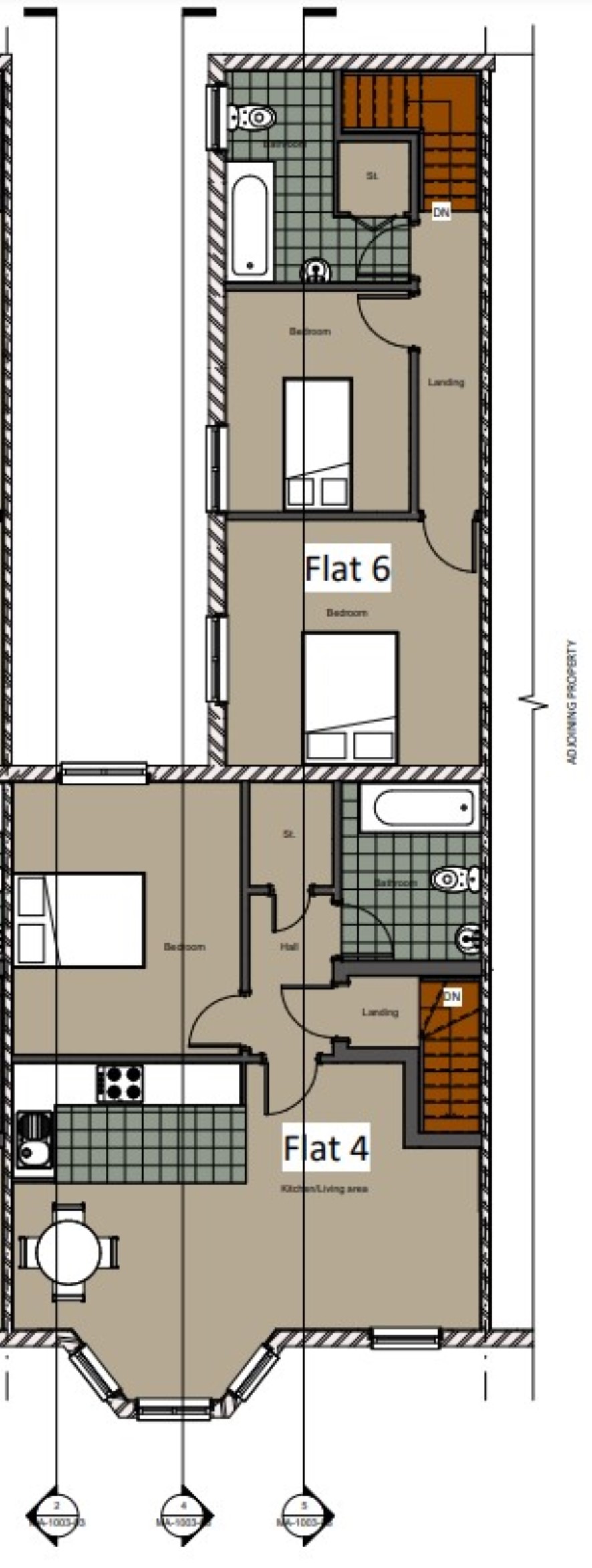
A part renovated property with consent to convert into 2 one-bedroom flats and a two-bedroom town house.

A programme of modernisation has commenced to convert this property into two one-bedroom flats and a two-bedroom town house. Independent water and electricity supplies have been connected and most preparation work has been carried out. The staircase and unfitted windows are included within the sale and the purchaser will be required to complete the improvements to comply with current building regulations and planning permission. Wellesley Road is located a short walk from the the town centre shops and sea front.

Tenure

Freehold

Proposed Accommodation

Ground Floor Flat: Lounge/kitchen, double bedroom, bathroom. First Floor Flat: Landing, lounge, kitchen, double bedroom, bathroom. Rear Town House: Hall, lounge, kitchen, 2 bedrooms, bathroom.

Planning

Planning permission was granted by Great Yarmouth Borough Council on 1 May 2020 ref. 06/20/0049/CU for the conversion from house in multiple occupation into 6 self-contained flats. This included the adjacent property which has already been completed. See planning documents for further information.

Viewing

Open viewings have been arranged for Saturday 4 February. To book an appointment please call the Norwich office.

Services

Interested parties are requested to make their own enquiries to the relevant authorities as to the availability of services.

Local Authority

Great Yarmouth Borough Council

Solicitors

Cozens-Hardy LLP, Ref: Alice Horne, Tel: 01603 724651

Important Notice to Prospective Buyers:

We draw your attention to the Special Conditions of Sale within the Legal Pack, referring to other charges in addition to the purchase price which may become payable. Such costs may include Search Fees, reimbursement of Sellers costs and Legal Fees, and Transfer Fees amongst others.

Additional Fees

Buyer's Premium - £600 inc VAT payable on exchange of contracts.

Administration Charge - 0.3% inc VAT of the purchase price, subject to a minimum of £1200 inc VAT, payable on exchange of contracts.

Disbursements - Please see the legal pack for any disbursements listed that may become payable by the purchaser on completion.

View Larger Map

Disclaimer: The map preview provided above is for general guidance only and may not accurately reflect the exact location or surrounding buildings. Prospective buyers and interested parties are strongly advised to independently verify the precise location and surroundings before bidding.