Withdrawn | Lot 37

38 Hampton Road, Ipswich, Suffolk IP1 4AP

Withdrawn

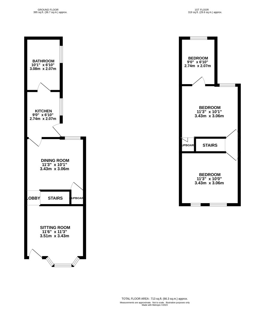
  • Terraced House
  • 3 Bedrooms
  • Tenure: Freehold

Call the team on 01473 558 888 for more information

Auction Date

Wed 08/02/2023

Auction Time

11:00

Auction Venue

Livestream Auction

A prime residential investment with an established tenant

Situated to the west of Ipswich town centre is this single bay fronted terraced house which is in good order throughout. The property, which offers gas central heating and double glazing to the 3 bedroom (3rd off the 2nd) accommodation, has an established tenant in residence and a new 12 month AST at a rent of £725 per calendar month (£8,700 per annum) will be put into place prior to completion of the sale. The annual yield of over 6.5% relative to the low Guide Price suggests this an investment opportunity not to be missed.

Tenure

Freehold

Council Tax Band

A

Viewing

Open Viewings can be arranged. BOOKING AN APPOINTMENT IS ESSENTIAL. Please contact our Ipswich office to be allocated a slot on your preferred day.

Energy Efficiency Rating (EPC)

Current Rating C

Services

Interested parties are requested to make their own enquiries to the relevant authorities as to the availability of services.

Local Authority

Ipswich Borough Council

Solicitors

Bates Wells and Braithwaite (Ipswich), Ref: Tomasz Burchan, Tel: 01473 219282

Important Notice to Prospective Buyers:

We draw your attention to the Special Conditions of Sale within the Legal Pack, referring to other charges in addition to the purchase price which may become payable. Such costs may include Search Fees, reimbursement of Sellers costs and Legal Fees, and Transfer Fees amongst others.

Additional Fees

Buyer's Premium - £900 inc VAT payable on exchange of contracts.

Administration Charge - 0.3% inc VAT of the purchase price, subject to a minimum of £1200 inc VAT, payable on exchange of contracts.

Disbursements - Please see the legal pack for any disbursements listed that may become payable by the purchaser on completion.

View Larger Map

Disclaimer: The map preview provided above is for general guidance only and may not accurately reflect the exact location or surrounding buildings. Prospective buyers and interested parties are strongly advised to independently verify the precise location and surroundings before bidding.