Postponed | Lot 38

Bridge House, 1 High Street, Coltishall, Norwich, Norfolk NR12 7AA

Postponed

  • Guest House
  • 9 Bedrooms
  • Tenure: Freehold

Call the team on 01603 505 100 for more information

Auction Date

Wed 08/02/2023

Auction Time

11:00

Auction Venue

Livestream Auction

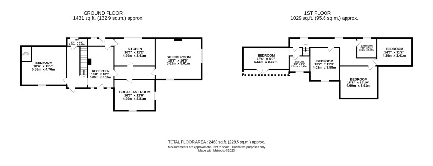
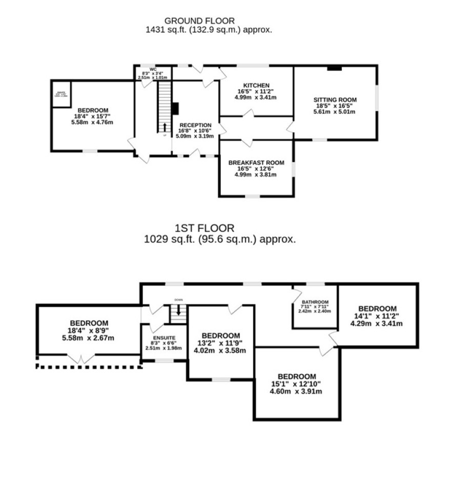
Nine letting room Guest House with gym, river frontage and swimming pool in the centre of popular Norfolk town.

Set back from the River Bure, Bridge House provides nine letting rooms (six en-suite), private living accommodation, off-street parking, extensive gardens, an outdoor swimming pool, a gym, ancillary buildings and benefits from river frontage. The property is well located, towards the centre of Coltishall, benefitting from proximity to the Norfolk Broads and local amenities. The property presents a fantastic investment opportunity to add value and maximise the potential of the uniquely located asset.

Tenure

Freehold

Bridge House

Nine letting rooms Dining room Communal space WC Outdoor swimming pool Ancillary buildings Private accommodation

Viewings

Viewings are being held BY APPOINTMENT ONLY and the next opportunities to view are Wednesday 25 and Tuesday 31 January. Please contact us to book a slot.

Services

Interested parties are requested to make their own enquiries to the relevant authorities as to the availability of services.

Local Authority

Broadland District Council

Solicitors

Bindman and Co, Ref: Claire Stanton, Tel: 0191 432 4408

Important Notice to Prospective Buyers:

We draw your attention to the Special Conditions of Sale within the Legal Pack, referring to other charges in addition to the purchase price which may become payable. Such costs may include Search Fees, reimbursement of Sellers costs and Legal Fees, and Transfer Fees amongst others.

Additional Fees

Buyer's Premium - £1500 inc VAT payable on exchange of contracts.

Administration Charge - 0.3% inc VAT of the purchase price, subject to a minimum of £1200 inc VAT, payable on exchange of contracts.

Disbursements - Please see the legal pack for any disbursements listed that may become payable by the purchaser on completion.

View Larger Map

Disclaimer: The map preview provided above is for general guidance only and may not accurately reflect the exact location or surrounding buildings. Prospective buyers and interested parties are strongly advised to independently verify the precise location and surroundings before bidding.