Postponed | Lot 32

The Old Dairy, Wood Farm, Helmingham Road, Otley, Ipswich, Suffolk IP6 9NS

Postponed

  • Barn
  • Tenure: Freehold

Call the team on 01473 558 888 for more information

Auction Date

Wed 08/02/2023

Auction Time

11:00

Auction Venue

Livestream Auction

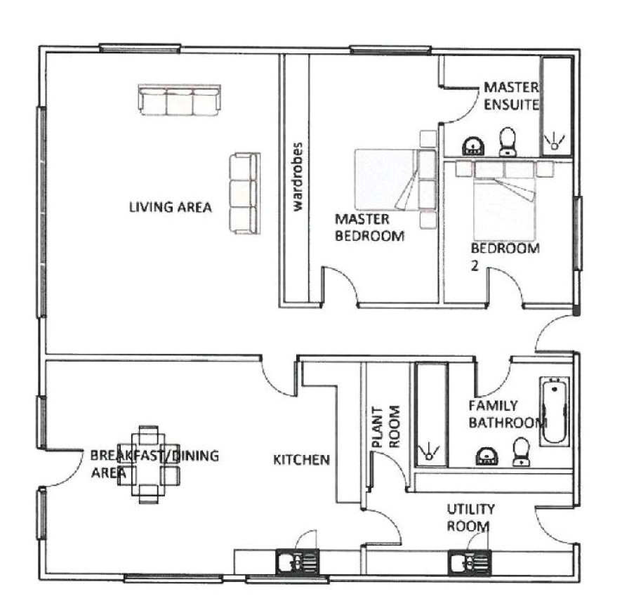
A single storey barn with consent for residential use

Situated in the desirable village of Otley some nine miles to the north of Ipswich and standing in a plot extending to app. 0.3 acres is this single storey barn with planning consent to convert for residential use. Planning Permission under reference DC/21/2346/PN3 was granted by East Suffolk Council for a spacious two bedroom dwelling extending to around 1,830 sq ft and offers an adjacent semi-derelict barn which may also offer development potential (STPP). With outstanding views across the Suffolk countryside to the rear we believe this offers a first class opportunity for an end user or developer.

Tenure

Freehold

Viewing

Open Viewing has been arranged for the morning of Tuesday 24th January, please contact our Ipswich office to book an appointment.

Services

Interested parties are requested to make their own enquiries to the relevant authorities as to the availability of services.

Local Authority

East Suffolk Council

Solicitors

Gotelee Solicitors (Ipswich), Ref: Claire Barritt, Tel: 01473 826312

Important Notice to Prospective Buyers:

We draw your attention to the Special Conditions of Sale within the Legal Pack, referring to other charges in addition to the purchase price which may become payable. Such costs may include Search Fees, reimbursement of Sellers costs and Legal Fees, and Transfer Fees amongst others.

Additional Fees

Buyer's Premium - 0.6% inc VAT of the purchase price, payable on exchange of contracts.

Administration Charge - 0.3% inc VAT of the purchase price, subject to a minimum of £1200 inc VAT, payable on exchange of contracts.

Disbursements - Please see the legal pack for any disbursements listed that may become payable by the purchaser on completion.

View Larger Map

Disclaimer: The map preview provided above is for general guidance only and may not accurately reflect the exact location or surrounding buildings. Prospective buyers and interested parties are strongly advised to independently verify the precise location and surroundings before bidding.