Postponed | Lot 33

Wood Farm Barns, Wood Farm, Helmingham Road, Otley, Ipswich, Suffolk IP6 9NS

Postponed

  • Barn
  • Tenure: Freehold

Call the team on 01473 558 888 for more information

Auction Date

Wed 08/02/2023

Auction Time

11:00

Auction Venue

Livestream Auction

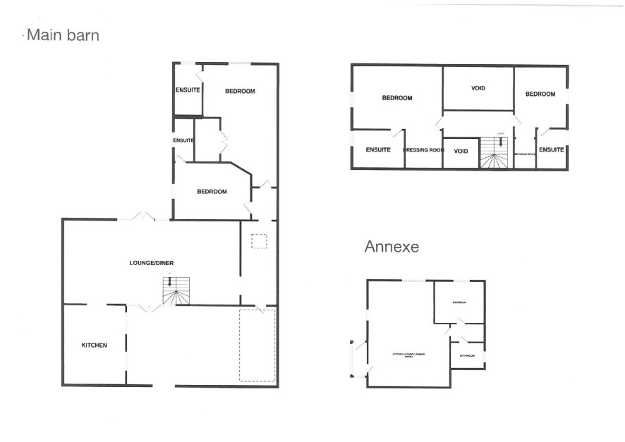
Two traditional Suffolk barns with Planning for a main residence and an annexe

A unique opportunity to acquire two barns with Planning Permission for a 4 bedroom main dwelling and a detached 1 bedroom annexe. The delightful village of Otley is located some 9 and 8 miles from Ipswich and Woodbridge respectively both of which offer a broad range of amenities and mainline rail links to London Liverpool Street station. Conversion of the annexe has commenced and will ultimately offer around 915 sq ft of accommodation whilst the main barn remains in it's original condition and will ultimately offer around 1,680 sq ft of accommodation. Set in grounds of app. 0.35 acres we believe this to be an exciting development opportunity.

Tenure

Freehold

Viewing

Open Viewing has been arranged for the morning of Tuesday 24th January, please contact our Ipswich office to book an appointment.

Services

Interested parties are requested to make their own enquiries to the relevant authorities as to the availability of services.

Local Authority

East Suffolk Council

Solicitors

Gotelee Solicitors (Ipswich), Ref: Claire Barritt, Tel: 01473 826312

Important Notice to Prospective Buyers:

We draw your attention to the Special Conditions of Sale within the Legal Pack, referring to other charges in addition to the purchase price which may become payable. Such costs may include Search Fees, reimbursement of Sellers costs and Legal Fees, and Transfer Fees amongst others.

Additional Fees

Buyer's Premium - 0.6% inc VAT of the purchase price, payable on exchange of contracts.

Administration Charge - 0.3% inc VAT of the purchase price, subject to a minimum of £1200 inc VAT, payable on exchange of contracts.

Disbursements - Please see the legal pack for any disbursements listed that may become payable by the purchaser on completion.

View Larger Map

Disclaimer: The map preview provided above is for general guidance only and may not accurately reflect the exact location or surrounding buildings. Prospective buyers and interested parties are strongly advised to independently verify the precise location and surroundings before bidding.