For Sale By Auction | 11:00, 22 March 2023 | Lot 2

40 Bishop Bridge Road, Norwich, Norfolk NR1 4ET

Sold £158,500

  • Terraced House
  • 3 Bedrooms
  • Tenure: Freehold

Call the team on 01603 505 100 for more information

Auction Date

Wed 22/03/2023

Auction Time

11:00

Auction Venue

Livestream Auction

Three bedroom mid-terrace house close to the city centre requiring modernisation

This property is situated less than a mile from the city centre and railway station, close to a comprehensive range of services and amenities. It has double glazing and fine views at the rear of Norwich Cathedral, Cow Tower and the River Wensum. It has been in the same ownership for nearly 60 years, and is now to be sold with vacant possession. We are informed by the owner that remedial repair was carried out in 2013. Updating is required to realise its full potential. This would be an ideal purchase for an owner occupier or investor.

Tenure

Freehold

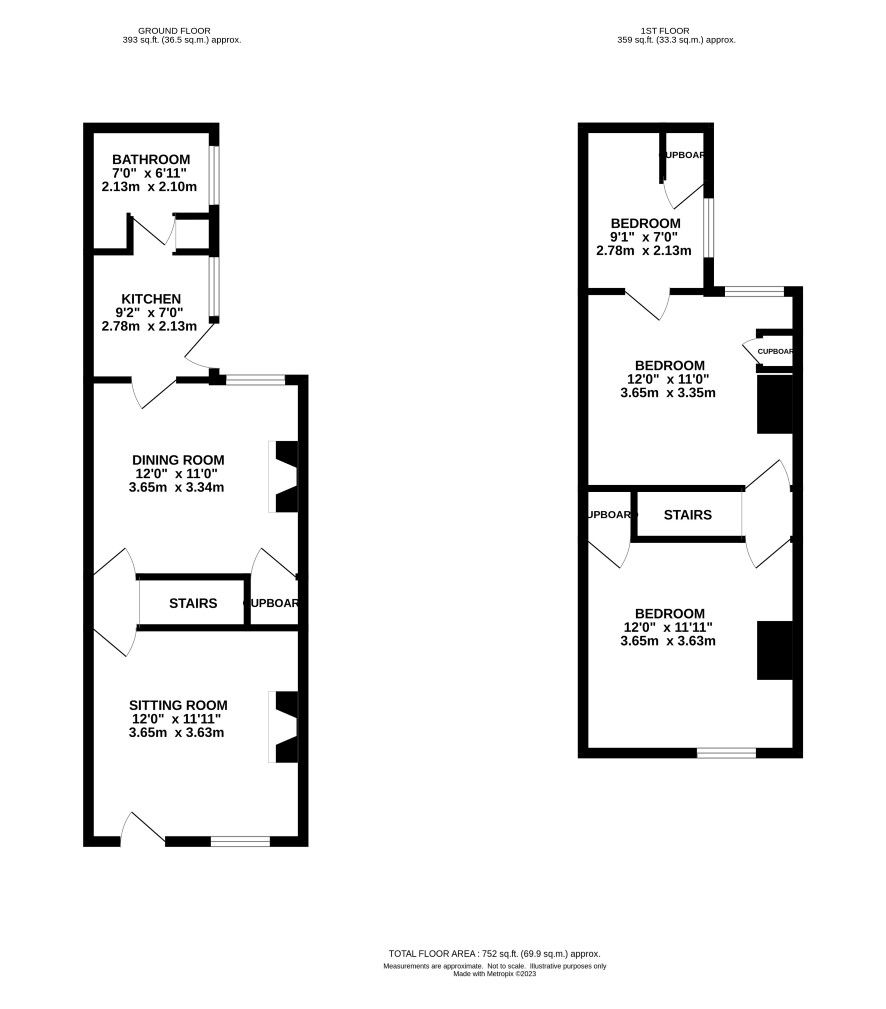
Ground floor

Sitting room, dining room, kitchen, bathroom

First floor

Three bedrooms (3rd through 2nd)

Outside

Small front area, rear bisected split level garden in need of attention with timber shed

Council Tax band

B

Viewings

Open viewings are arranged and the next are on Friday 17 March. Please call the Norwich office to book an appointment.

Energy Efficiency Rating (EPC)

Current Rating E

Services

Interested parties are requested to make their own enquiries to the relevant authorities as to the availability of services.

Local Authority

Norwich City Council

Solicitors

Rogers and Norton (Norwich), Ref: Michele Walters, Tel: 01603 666001

Important Notice to Prospective Buyers:

We draw your attention to the Special Conditions of Sale within the Legal Pack, referring to other charges in addition to the purchase price which may become payable. Such costs may include Search Fees, reimbursement of Sellers costs and Legal Fees, and Transfer Fees amongst others.

Additional Fees

Buyer's Premium - £300 inc VAT payable on exchange of contracts.

Administration Charge - 0.3% inc VAT of the purchase price, subject to a minimum of £1200 inc VAT, payable on exchange of contracts.

Disbursements - Please see the legal pack for any disbursements listed that may become payable by the purchaser on completion.

View Larger Map

Disclaimer: The map preview provided above is for general guidance only and may not accurately reflect the exact location or surrounding buildings. Prospective buyers and interested parties are strongly advised to independently verify the precise location and surroundings before bidding.