For Sale By Auction | 11:00, 22 March 2023 | Lot 1

73 Bakers Road, Norwich, Norfolk NR3 3AZ

Sold £193,000

  • Terraced House
  • 3 Bedrooms
  • Tenure: Freehold

Call the team on 01603 505 100 for more information

Auction Date

Wed 22/03/2023

Auction Time

11:00

Auction Venue

Livestream Auction

A three bedroom mid terrace requiring full refurbishment

Situated within the NR3 postcode this three bedroom mid terraced house is now in need of full refurbishment and is located within close proximity to both local amenities and the cathedral city of Norwich. This property would appeal to both the investor and owner occupier.

Tenure

Freehold

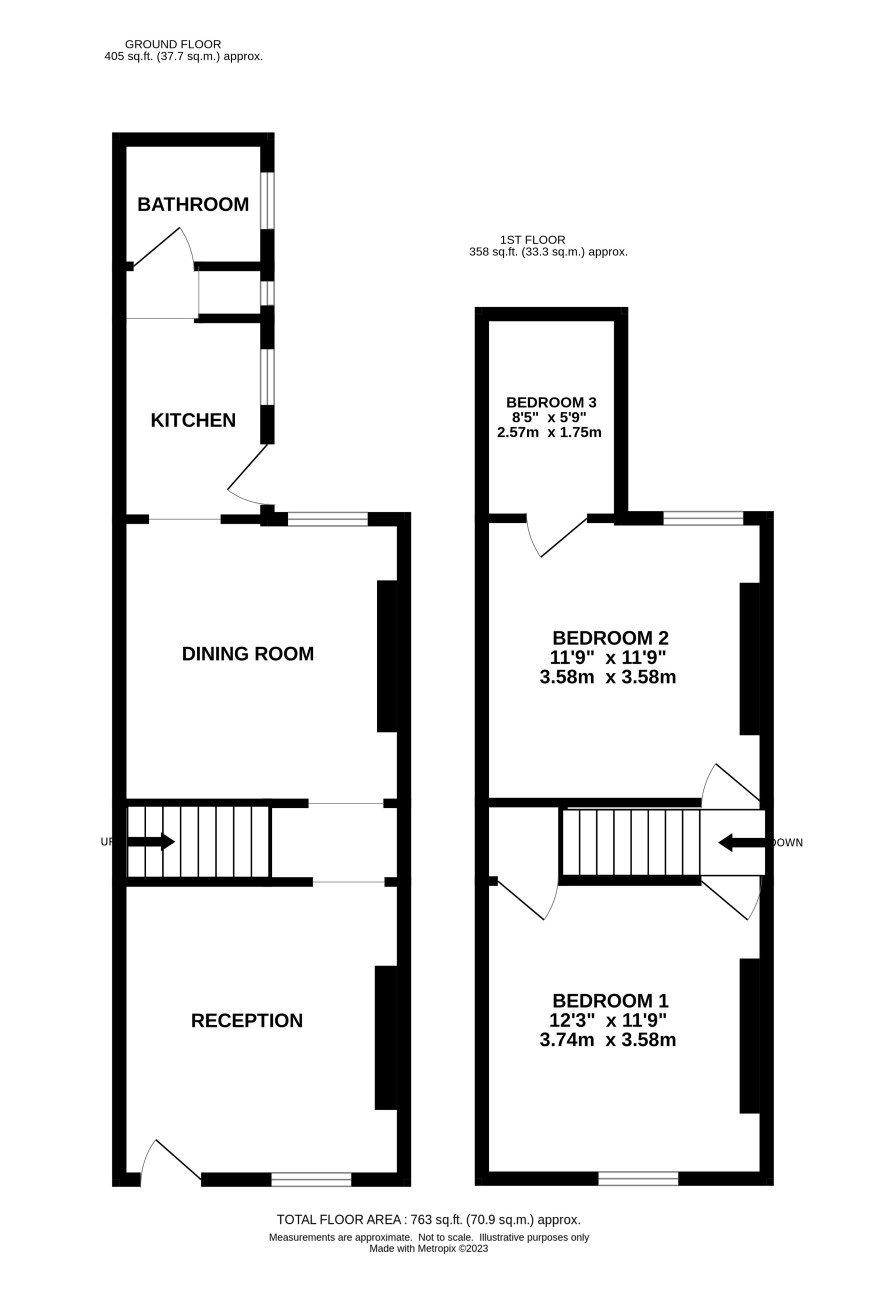
Ground Floor

Sitting Room, Dining Room, Kitchen , Bathroom.

First Floor

Three Bedrooms with bedroom three off second bedroom

Outside

Front Garden, Rear Garden with pedestrian access to the rear

Council Tax

A

Viewings

Final open Viewings have been scheduled for Monday 20 March. APPOINTMENT ESSENTIAL, please call our Norwich office to be allocated a time slot.

Energy Efficiency Rating (EPC)

Current Rating D

Services

Interested parties are requested to make their own enquiries to the relevant authorities as to the availability of services.

Local Authority

Norwich City Council

Solicitors

Tennant Mickleburgh, Ref: Jane Mickleburgh, Tel: 01603 985722

Important Notice to Prospective Buyers:

We draw your attention to the Special Conditions of Sale within the Legal Pack, referring to other charges in addition to the purchase price which may become payable. Such costs may include Search Fees, reimbursement of Sellers costs and Legal Fees, and Transfer Fees amongst others.

Additional Fees

Buyer's Premium - £600 inc VAT payable on exchange of contracts.

Administration Charge - 0.3% inc VAT of the purchase price, subject to a minimum of £1200 inc VAT, payable on exchange of contracts.

Disbursements - Please see the legal pack for any disbursements listed that may become payable by the purchaser on completion.

View Larger Map

Disclaimer: The map preview provided above is for general guidance only and may not accurately reflect the exact location or surrounding buildings. Prospective buyers and interested parties are strongly advised to independently verify the precise location and surroundings before bidding.