Sold Prior | Lot 93

64 London Street, Norwich, Norfolk NR2 1JX

Sold Prior

  • Retail Property (high street)
  • Tenure: Freehold

Call the team on 01603 505 100 for more information

Auction Date

Thu 04/05/2023

Auction Time

11:00

Auction Venue

Livestream Auction

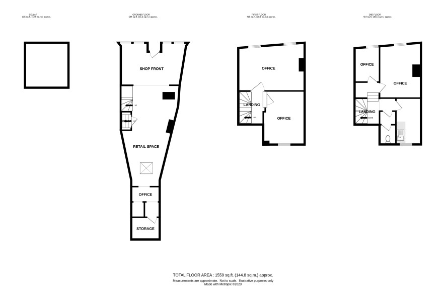
Generous three storey commercial premises comprising retail unit with office space above in need of some remedial repairs

Formerly rented by the British Heart Foundation, this three storey retail unit is situated in a well known shopping area in the centre of Norwich. In need of some modernising and remedial work, this prominent retail shop has a total floor area of 112sq/m with two floors of office space above. Offering great potential to an investment buyer the property was formerly let for £25,000pa. Internal viewing is recommended. The current rateable value is £15,000pa. However from 6th April 2023 this will be £12,750pa.

Tenure

Freehold

Ground Floor

Retail area with rear office and storage area, door to cellar

First Floor

Landing with stairs to second floor, two offices

Second Floor

Landing with two further offices and kitchen.

Note

There is a deed of easement for a fire exit on the second floor which I believe can be applied to be removed once in ownership.

Viewings

Open ewings are being held and the next are on Wednesday 12 April. Please contact the Norwich Office to book an appointment.

Energy Efficiency Rating (EPC)

Current Rating D

Services

Interested parties are requested to make their own enquiries to the relevant authorities as to the availability of services.

Local Authority

Norwich City Council

Important Notice to Prospective Buyers:

We draw your attention to the Special Conditions of Sale within the Legal Pack, referring to other charges in addition to the purchase price which may become payable. Such costs may include Search Fees, reimbursement of Sellers costs and Legal Fees, and Transfer Fees amongst others.

Additional Fees

Buyer's Premium - £960 inc VAT payable on exchange of contracts.

Administration Charge - 0.3% inc VAT of the purchase price, subject to a minimum of £1200 inc VAT, payable on exchange of contracts.

Disbursements - Please see the legal pack for any disbursements listed that may become payable by the purchaser on completion.

View Larger Map

Disclaimer: The map preview provided above is for general guidance only and may not accurately reflect the exact location or surrounding buildings. Prospective buyers and interested parties are strongly advised to independently verify the precise location and surroundings before bidding.