For Sale By Auction | 11:00, 04 May 2023 | Lot 95

137 Bury Street, Norwich, Norfolk NR2 2DL

Sold £238,000

  • Terraced House
  • 3 Bedrooms
  • Tenure: Freehold

Call the team on 01603 505 100 for more information

Auction Date

Thu 04/05/2023

Auction Time

11:00

Auction Venue

Livestream Auction

A valuable freehold investment property currently let producing £1,200 pcm. Vacant possession available from July 2023

This mid terrace house is currently let to students with a monthly rental of £1,200 pcm. The tenancy agreement comes to a conclusion on 30.6.23. The property is double glazed, has gas central heating and is in generally good decorative order with modern bathroom and kitchen fittings. Bury Street is in the highly favoured 'Golden Triangle' area of Norwich which benefits from a wide range of shops, local amenities and regular public transport to the city centre, University and Norfolk and Norwich Hospital.

Tenure

Freehold

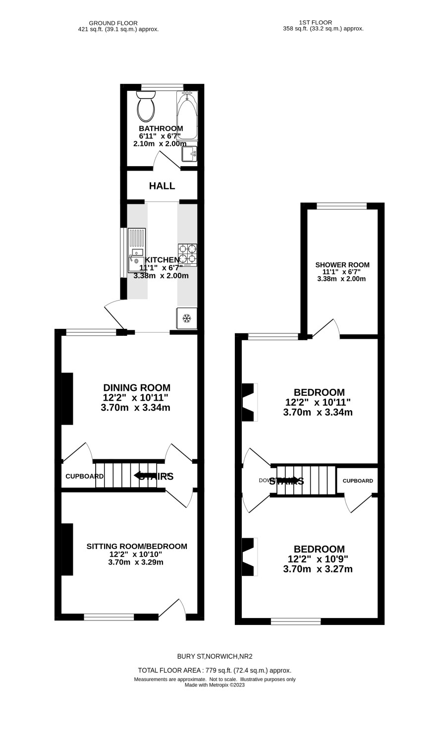
Ground Floor

Lounge/bedroom, dining room, kitchen, bathroom

First Floor

Two bedrooms, shower room.

Outside

Small front and rear gardens

Council Tax Band

B

Viewings

Open viewings will be arranged after liaison with the tenants - these are set for Friday, 28 April and Tuesday 2 May. Please check with the Norwich office for booking an appointment.

Energy Efficiency Rating (EPC)

Current Rating D

Services

Interested parties are requested to make their own enquiries to the relevant authorities as to the availability of services.

Local Authority

Norwich City Council

Solicitors

Bindman and Co, Ref: Claire Stanton, Tel: 0191 432 4408

Important Notice to Prospective Buyers:

We draw your attention to the Special Conditions of Sale within the Legal Pack, referring to other charges in addition to the purchase price which may become payable. Such costs may include Search Fees, reimbursement of Sellers costs and Legal Fees, and Transfer Fees amongst others.

Additional Fees

Buyer's Premium - £600 inc VAT payable on exchange of contracts.

Administration Charge - 0.3% inc VAT of the purchase price, subject to a minimum of £1200 inc VAT, payable on exchange of contracts.

Disbursements - Please see the legal pack for any disbursements listed that may become payable by the purchaser on completion.

View Larger Map

Disclaimer: The map preview provided above is for general guidance only and may not accurately reflect the exact location or surrounding buildings. Prospective buyers and interested parties are strongly advised to independently verify the precise location and surroundings before bidding.