For Sale By Auction | 11:00, 04 May 2023 | Lot 68

11 Coverley Road, South Witham, Grantham, Lincolnshire NG33 5SP

Sold £140,000

  • Bungalow
  • 2 Bedrooms
  • Tenure: Freehold

Call the team on 01733 889833 for more information

Auction Date

Thu 04/05/2023

Auction Time

11:00

Auction Venue

Livestream Auction

A detached two bedroom bungalow in need of renovation and improvement

A detached two bedroom bungalow on a modern development in need of improvement and renovation internally offered with vacant possession. There has been some water damage internally with the ceilings in the kitchen and utility room partly down. The accommodation includes an en-suite shower to the master bedroom, kitchen and utility room. South Witham is located just off the A1 north of Stamford. The village has two shops a school and a Public House. More extensive facilities can be found at Oakham and Grantham.

Tenure

Freehold

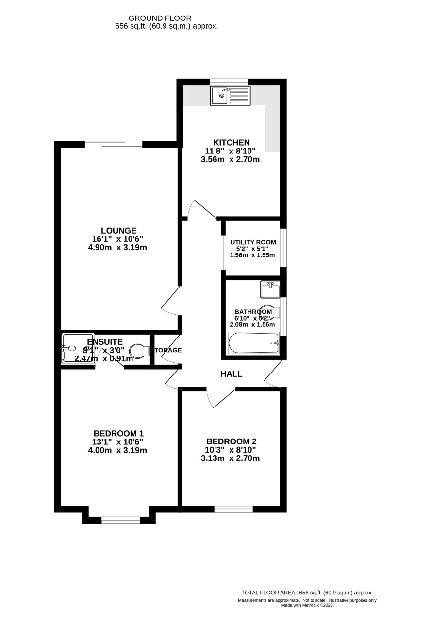
Accommodation

Hall, lounge, kitchen, utility, master bedroom with en-suite shower, second bedroom and a bathroom.

Outside

Garage and gardens at rear.

Council Tax Band

C

Energy Efficiency Rating (EPC)

Current Rating D

Services

Interested parties are requested to make their own enquiries to the relevant authorities as to the availability of services.

Local Authority

South Kesteven District Council

Solicitors

Asus Investments, 50 St. Mary Axe, Ref: Monika Haidar, Tel: 0203 984 0409

Important Notice to Prospective Buyers:

We draw your attention to the Special Conditions of Sale within the Legal Pack, referring to other charges in addition to the purchase price which may become payable. Such costs may include Search Fees, reimbursement of Sellers costs and Legal Fees, and Transfer Fees amongst others.

Additional Fees

Buyer's Premium - £750 inc VAT payable on exchange of contracts.

Administration Charge - 0.3% inc VAT of the purchase price, subject to a minimum of £1200 inc VAT, payable on exchange of contracts.

Disbursements - Please see the legal pack for any disbursements listed that may become payable by the purchaser on completion.

View Larger Map

Disclaimer: The map preview provided above is for general guidance only and may not accurately reflect the exact location or surrounding buildings. Prospective buyers and interested parties are strongly advised to independently verify the precise location and surroundings before bidding.