For Sale By Auction | 11:00, 04 May 2023 | Lot 67

Touchwood, Roman Bank, Holbeach Bank, Holbeach, Spalding, Lincolnshire PE12 8BX

Sold After

  • Link Detached House
  • 3 Bedrooms
  • Tenure: Freehold

Call the team on 01733 889833 for more information

Auction Date

Thu 04/05/2023

Auction Time

11:00

Auction Venue

Livestream Auction

A linked detached three bedroom house in need of renovation and improvement offered with vacant possession

A linked detached three bedroom house in need of improvement with ceilings down in the kitchen and water damage to some of the rooms. The accommodation includes a lounge, kitchen/diner, utility, conservatory and w.c. with three bedrooms and a bathroom on the first floor. Outside offers an integral garage and garden at rear. Holbeach Bank is a hamlet north of Holbeach. The village offers a school with more extensive facilities found in Holbeach town.

Tenure

Freehold

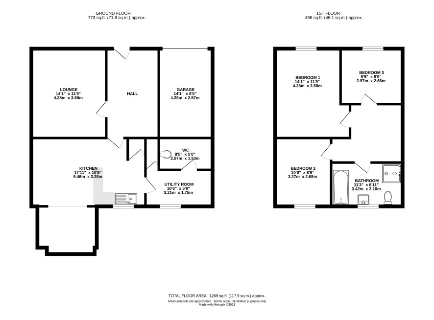
Ground Floor

Hall, lounge, kitchen/diner, utility w.c., conservatory.

First Floor

Three bedrooms, bathroom

Outside

Gardens at front and rear, single garage.

Council Tax Band

B

Energy Efficiency Rating (EPC)

Current Rating E

Services

Interested parties are requested to make their own enquiries to the relevant authorities as to the availability of services.

Local Authority

South Holland District Council

Solicitors

Konexo, PO Box 66, 1 Callaghan Square, Ref: Konexo, Tel: 02920 477506

Important Notice to Prospective Buyers:

We draw your attention to the Special Conditions of Sale within the Legal Pack, referring to other charges in addition to the purchase price which may become payable. Such costs may include Search Fees, reimbursement of Sellers costs and Legal Fees, and Transfer Fees amongst others.

Additional Fees

Buyer's Premium - £1560 inc VAT payable on exchange of contracts.

Administration Charge - 0.3% inc VAT of the purchase price, subject to a minimum of £1200 inc VAT, payable on exchange of contracts.

Disbursements - Please see the legal pack for any disbursements listed that may become payable by the purchaser on completion.

View Larger Map

Disclaimer: The map preview provided above is for general guidance only and may not accurately reflect the exact location or surrounding buildings. Prospective buyers and interested parties are strongly advised to independently verify the precise location and surroundings before bidding.